LDK還不夠,書房也來湊一湊,簡潔溫馨太實用,快種草!
來源:愛空間科技(北京)有限公司 日期:2022-10-26 13:54:04
- 詳細介紹
房子交付的大半年前,業主群的人都著手準備,作為裝修小白的我自然不敢松懈,幸運的是通過朋友介紹遇到了心儀的設計師,他的設計理念也是我所認可的,每次溝通過程似乎都有聊不完的內容,家人也都對這次裝修充滿了期待。
最終呈現的效果沒有讓我們失望,全屋設計精致耐看,沒有多余的造型和裝飾,整個家具布置以簡單實用性放在第一位,呈現出極簡北歐的氣質;LDK加上書房的創新組合,既簡潔溫馨又實用;設計師還根據我們的生活習慣對家居收納做了系統的規劃,在不同的區域增設儲物柜,雖然才入住半年,基本上能用到的柜子都被用上了,給我們的生活提供了很大便利。
言有盡,意無窮,再次感謝專業的設計團隊,帶來的一次美好的裝修體驗,讓我們的夢想成真。
房屋信息:
面積:120㎡
戶型:三室兩廳兩衛
風格:北歐
常住人口:3人
裝修成本:20萬
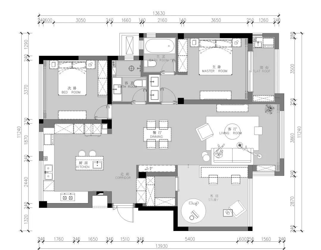
戶型圖
這是原始戶型圖,套內面積120平的房子,隔斷墻太多,入戶光線不是很充足,動靜分區不明確。加上原廚房的陽臺功能性不強,廚房區域布局上受到限制,衛生間面積小,沒有儲物空間,主臥需要進一步的調整。
調整策略如下:
1、將客廳與書房之間的墻體拆除,改成半墻隔斷,讓空間更寬敞通透;
2、廚房與雜物間打通,擴大使用面積,改造成開放式設計,增加采光;
3、廚房設計島臺,預留了位置可以放冰箱、烤箱等;
4、原本連通的大陽臺封閉起來,讓臥室與客廳彼此獨立,更具私密性。
玄關
在繁華喧囂的都市,擁有一處靜謐悠然的棲身之所,讓漂泊的心靈在打開家門的那一剎那,閑適安然,這就是家的意義所在。
進門左側是廚房,右側是餐廳,地板是瓷磚與原木不同的材質形成區域自然分隔,簡潔利落,和全屋極簡的布置相得益彰。
客廳
由于層高受限,客廳采用無主燈設計,輕松提升整體的寬敞度,更加通透和亮堂,安裝射燈輔助照明營造氛圍,同時也起到不錯的裝飾作用。
與灰色背景墻、簡易布藝沙發及茶幾搭配在一起,溫馨舒適又不乏個性潮流。

電視墻安裝定制的原木柜體,打造收納式背景墻,增加客廳的儲物空間,立體感強,美觀又大氣。

灰色沙發優雅輕奢,好看與好坐的平衡賦予了家庭的溫度,也提升客廳檔次。
陽臺包進客廳,增加室內采光,視野也變得開闊起來。整面墻的落地窗搭配百葉窗簾,最大化地保留通透感。
窗前擺放一張舒適的懶人躺椅,閑暇時靜坐于此,足不出戶,就能享受到陽光的溫暖與明媚,生活無比愜意。
餐廳
客餐廚一體化的設計,讓家居動線更加流暢利索,家人之間有更多的交流互動,提高空間利用率。
餐廳布置十分簡單,長方形的原木餐桌搭配藤編餐椅,再加上一盞燈光柔和的吊燈,輕松營造出溫馨的用餐環境,一家人圍坐在桌子旁,平淡的煙火氣里充滿幸福滋味。
餐邊柜是地柜+置物架的組合形式,既可以收納杯子等物品,又可以擺放藝術品,一舉多得。
廚房
廚房是開放式的設計,冰箱、水槽、灶臺、餐桌形成合理的動線,解決餐廳功能的同時,擴大了公共區域的面積。
一體化的設計,使得各區域的連接性增強,一步一景,你中有我,我中有你。
整齊的櫥柜收納力強,鍋碗瓢盆等都歸置其中,保持廚房環境的干凈清爽。
廚房中間增設同色系的吧臺,平時既可以用來放置水果又可以坐在這里休息放松。
主臥
主臥沒有多余的裝飾,簡單的大白墻+原木半墻,達到視覺上的平衡,同時也營造出靜謐、悠閑的氣息。側面的飄窗,通過白色紗簾進行隔斷,延伸出一塊休閑區。
北歐雙層床頭柜選用皮藝材質,外觀簡潔大方,可收納書籍、手機等小物品,拿取方便,實用性強。
主臥最大的亮點,是衛生間洗手臺外置,隨時洗手、洗漱都很方便。原木浴室柜優雅有質感,懸空設計可減少衛生間死角,清潔打理更為便捷。
次臥
女兒的房間布置的簡約溫馨,軟包床頭搭配潔凈素雅的床品,同時擁有良好的采光,希望她的小世界一直被陽光和幸福籠罩。
床頭背景墻涂上一層奶茶色的乳膠漆,甜而不膩,色彩鮮艷的床頭柜為臥室注入更多的活力,地面整鋪溫潤質樸的木地板,整體氛圍舒緩放松,居住感也是非常不錯的。
書房
書房與客廳之間僅有半墻隔斷,既在視覺上讓公共領域更加開闊,又可以增加區域間的互動性,同時實現明確分區。
在隔斷墻內安裝簡易書桌,滿足工作學習的需求,還能增加收納,一舉兩得。
書房里擺放客廳同款網紅毛毛蟲單人小沙發,柔軟舒適,造型新潮個性。旁邊擺放一盞落地燈,極簡輕奢,滿滿的北歐風。
落地式靠墻書架可多格儲物,整齊收納書籍。偶爾在周末的午后,坐在書房里,看喜歡的書籍,享受屬于自己的自由時光。
公衛
公衛用淺灰色木材鋪設,懸空式馬桶節省空間,淋浴區做了通頂的金屬玻璃隔斷,洗浴時隔絕水汽,保證室內干爽。
