廚房沒采光、客廳面積小的滿分處理,輕松打造禪意小三室
來源:愛空間科技(北京)有限公司 日期:2022-10-27 14:12:21
- 詳細介紹
“上有天堂,下有蘇杭。”逃離了北上廣的繁華與喧囂,@宇文和@菜菜帶著女兒回到家鄉,在朦朧煙雨的蘇州開始新的生活……
房子還是當時結婚時的,風格陳舊,功能區欠妥,一家三口生活起來很不方便。于是就決定把房子重新裝修一番。
@宇文正處于創業階段,居家辦公時間會比較多,需要一個特定的區域能夠不被打擾;餐廚空間的主要使用者是@菜菜,作為一名全職太太,現階段主要是負責一日三餐和照看剛滿周歲的女兒,夫妻倆人喜歡組織家庭聚會,一個完善且動線流暢的廚房顯得尤為重要;男主人提出每個區域盡可能有合理的收納,可以隨手把物品放進柜子,減少妻子分類歸納整理雜物的工作量。
此次設計以現代簡約風進行詮釋,亮點多多,比如半開放式廚房、多功能餐廳、三分離衛生間、中西廚分離、陽臺墨菲床,一家三口來到“新家”都露出了喜悅的目光。沒有最好,只有最適合,每個人都可以憑著自己的理想實現家的模樣,它們各不相同,卻都一樣溫暖。
戶型:三室兩廳
風格:現代簡約
常住人口:3人
面積:95㎡
裝修花費:23萬
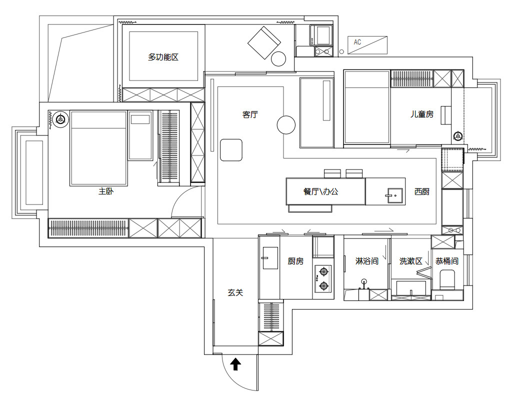
平面布置圖
原戶型偏零碎,大面積隔斷讓每個部分幾乎是封閉的,馬桶和淋浴甚至安排在了陽臺,入戶的位置是簡易廚房,居住環境有待提升。我們重新規劃了格局,進行了以下改造:
①餐廳加設中島,滿足多人聚會用餐場景,同時便于男主人在此處辦公。
②中西廚分設,使兩個區域保持寬敞整潔,同時將廚房原墻體改為玻璃隔斷,提升采光與通透。
③將原來封閉零散的部分改成符合三口之家的三室二廳格局,額外增加多功能區,滿足老人偶爾的居住需求。
④各個區域規劃合理的收納,減少家務整理負擔。
玄關
步入室內,可以將客廳全貌盡收眼底,采光分布均勻,通透靜謐。右側是毗鄰半開放廚房,格局新穎俏麗,為平淡生活注入了新鮮感。
客廳
客廳盡可能地保留自然氣質,純白天花板沒有繁雜的燈飾,背景墻通刷雅灰色,一張雙人座的小沙發+原木茶幾,釋放出更多寬敞的空間給孩子玩樂,地面鋪上棉麻地毯可以直接坐地上進行親子互動。
一盞溫暖的壁燈凝聚了家的溫馨,傍晚時分周圍微微暗下來,隨手點亮,一家人便可悠閑地在此享受影院模式。
客廳與陽臺之間裝上了長虹玻璃推拉門,平日里推拉門保持敞開的狀態,開放的格局減少了隔斷的阻礙,可以最大化接受室外采光,進行通風。遇到風雨天氣,關上門,不影響采光的同時,室內一片安靜干爽,還能起到較好的防塵作用。
獨立的靠椅是客廳提升氣質的必備單品,作為日常看書、休閑等等都很實用。
電視柜采用定制的方式,四周做出柜子,中間挑空掛電視,兼具儲物和展示的雙重效果,一舉兩得。
餐廳/西廚
餐廳是一個多種用途重疊的區域,除了一日三餐男主人還可以在這里居家辦公,邊工作邊兼顧照看寶貝女兒,還能和忙著烹飪的妻子互動交流,家人間感情更加親密。
黑色輕薄的巖板餐桌搭配焦糖色細腳皮質餐椅,飽有莊嚴的同時自帶幾分時尚,餐廳上方裝有三盞古銅色射燈,提升空間的品質,夜晚照射在光滑的桌面,反射的光暈營造出溫馨氛圍。
餐桌連接中島,寬敞的島臺為烘焙提供了充足的操作臺面,餐島一體的方式,可以增加家庭互動交流。
靠窗位置規劃出西廚,家用小電器,咖啡機、西廚設備等都存放在這里,下方的柜體還可以用于放置日常茶飲、酒水、零食等,便于女主人施展多樣廚藝。
廚房
中廚是通過拆掉原戶型墻體并安裝玻璃隔斷打造的,改善了采光問題,內部操作環境變得格外亮麗典雅,烹飪變成了一種趣事。
主臥
主臥配色呼應客廳,軟包大床布置上霧霾綠床品以及全屋反射光源,營造出淡雅舒怡的睡眠環境。
床頭裝一盞金屬線燈,落地擺放大理石底座的床邊茶幾,便于睡前看書和起夜的同時點綴居住環境。
兒童房
兒童房的一角是粉粉嫩嫩的高低床,下層的簾幕上布滿卡通圖案,童趣氛圍滿滿,是孩子自己玩耍的秘密基地。
上層高度適中,爬梯以8公分寬度打造,不會硌腳,三層臺階對于小孩來說安全性極高。
另一邊以學習、儲物為主要規劃目標,三個封閉柜存放衣物,開放的臺面作為書架,連接到窗邊學習區,舒適的環境便于寶寶學習習慣的養成。
兒童學習區設置在飄窗處,光線充足,書桌是推拉式的,學習的時候可以拉出來,保證孩子的腿可以伸直,有一個舒服的學習姿勢,不使用時書桌推回,不占用面積,留出更多空間以便孩子隨心所欲暢玩。
多功能區
多功能區域是以陽臺部分面積打造的,便于家人好友偶爾留宿,可移動推拉門既保證了私密性,又不會影響地面平整,方便清潔。
墨菲床可以隨時抽出使用,不用時推進去就能保持此處的暢通,平日里這是他們一家三口休閑曬太陽的地方,還能晾曬衣物。
衛生間
衛生間采用三分離,淋浴間、洗漱區、恭桶間功能分離后,避免了同時段使用的擁擠。
