音樂人單身帥哥有腹肌有貓,1人任性住105㎡,燃爆了~
來源:愛空間科技(北京)有限公司 日期:2022-10-28 11:08:33
- 詳細介紹
第一眼看到這個家,就被它的復古氣息深深吸引住了,整屋給人一種摩登復古的感覺,既時尚又懷舊,讓人很心動,住起來也超級舒服!
這是@杰瑞最心愛的屋子,裝滿了年輕的夢想,大學時候便是樂隊貝斯手,畢業做了一名獨立音樂人,“個性”是他的代名詞,從平時的穿衣打扮可知,他是個相當時尚有品的人,買房時@杰瑞就考慮好了一切,目前是獨居狀態,家居配設都可以按照自己的喜好來,首先想要個獨立的音樂角,可以約好友一起“切磋”技藝;書房也是必不可少;最好能做個大套間,讓生活動線更加方便,最重要的,一定要“炫”……
我們以屋主@杰瑞的喜好為出發點,對戶型進行了局部調整,然后采用復古優雅的風格,融合一些現代元素,以跳躍的色彩+大膽的裝飾,打造出一個艷而不俗的理想空間,特別是彩色方塊磚音樂角,怎一個“酷”字了得,誰也無法拒絕這樣的美宅吧~
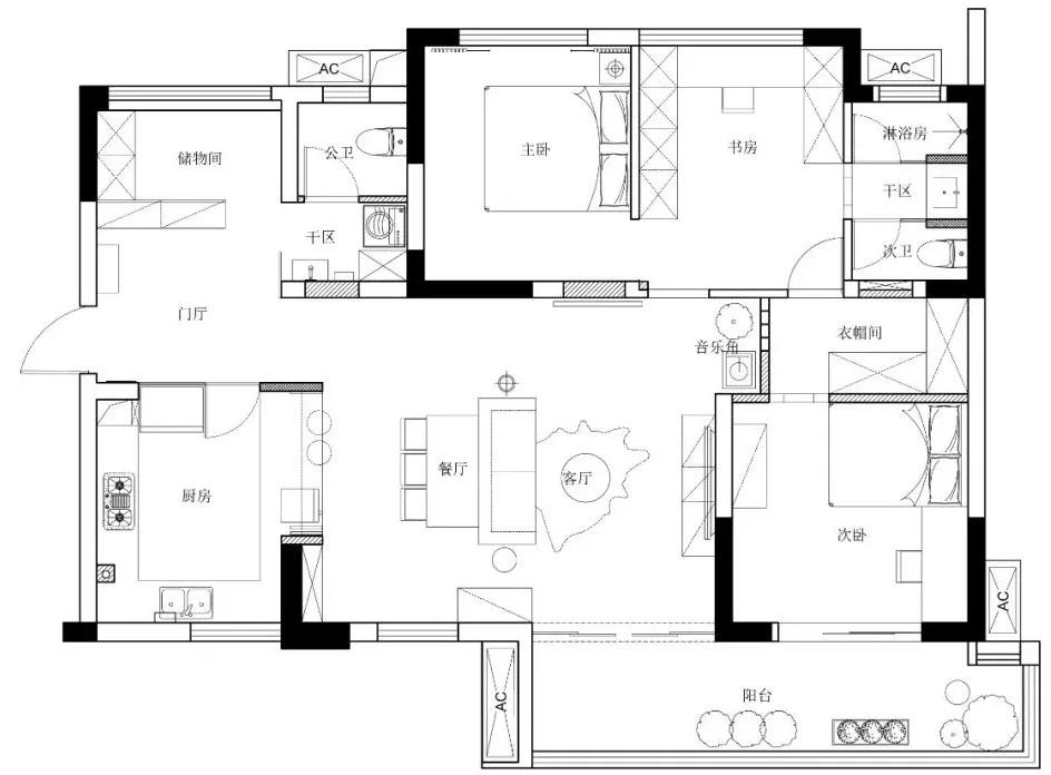
平面布局圖
戶型分析:
1.四居室結構,樓層不錯,而且南北通透,采光和通風性都很好,但每個房間的面積都不大;
2.入戶區域比較緊湊;
3.廚房略顯逼仄,與公區缺少關聯和互動;
4.橫廳開間只有6m,導致功能區相對狹窄;
5.客廳陽臺與主臥室連通,缺少私密性;
6.入戶大門直接正對主臥門,風水位不太好。
戶型改造:平時家里就一個人住,不需要太多房間,于是在保留主臥和一間客房的基礎上,重新進行了功能區布局調整:
1.將玄關旁邊的房間縮小,改造成雜物儲藏室,同時擴大了門廳面積;
2.拆除廚房和餐廳之間的非承重墻體,改為吧臺隔斷,做成半開放式設計,既實用又能提升空間感;
3.原來的兩間客房打通,規劃成一個集休息區、書房、衣帽間和衛生間一體的主臥套房,原主臥室則調整了進門方向,改為客房使用;
4.主衛三式分離,提高了使用效率;
5.次臥與衣帽間相通,使整個房子動線迂回;
6.原主臥門位置改成屋主最喜歡的音樂角,完美解決了入戶直沖的問題,一打開門就可以看到玻璃磚搭配樂器,無疑是這個房子的亮眼之處。房屋信息:
面積:105㎡
戶型:三室兩廳兩衛
常住人口:1人
風格:復古風
裝修成本:21萬
玄 關
原戶型的玄關是一個狹長區域,進門就覺得很擁擠,于是把隔壁臥室的面積縮小,以擴大門廳,并配置了換鞋凳、鞋柜和掛衣區,滿足屋主的使用需求。
天花板整體吊平,墻面用深藍和淡黃做拼色,中間點綴一條細腰線,在壁燈的映襯下,營造出濃郁的復古氛圍。
鞋柜緊挨儲物間的金屬網屏風隔斷,棕色柜體搭配純銅拉手,質感十足,半開放式可以增強內室采光,彌補玄關無窗子的不足。
回家,把外面的風塵沉淀于此,換一種心情,去擁抱最真實的自己。
客 廳
客餐廳在同一個空間內,兩個區域以沙發為分界,相互獨立,又保持了彼此的聯系,電視機算是客廳的視覺中心點,采用了壁掛式,電線和插座都隱藏在后面,看上去更加整潔。
客廳與陽臺用玻璃門隔開,采光不錯,天花板中央懸掛了一盞復古風水晶燈,是@杰瑞從網上淘來的,有一種精致夢幻的感覺。
棕色絲絨沙發沉穩優雅,摸上去相當舒服,側面靠墻擺放一個玻璃收納柜,完美利用了每一寸空間,柜頂上擺放著喜歡的個性擺件,特別有意思。
除了主燈以外,客廳的氛圍燈也非常漂亮,墻上的復古壁燈和吊鐘連接在一起,讓人仿佛穿越到了中世紀的歐洲。
電視機旁邊擺放一盞落日燈,是時下比較流行的,打開后燈光投影在墻面上,宛若落日余暉,浪漫的氣息一下子就出來了,通過調整燈頭的距離,可以呈現出不同大小的光暈效果,隨手一拍,就是朋友圈里讓人羨慕的家居大片……
中央擺放一張玻璃圓幾,簡美實用。
餐 廳
餐廳和廚房相鄰,兩個功能區以吧臺作為連接點,互動性良好,吧臺上方安裝了黑框玻璃折疊窗,平時做飯如果油煙比較大,可以把窗戶關上,避免影響其他家居環境,還可以防止貓跑進廚房。
作為“熬夜星人”,屋主經常會在睡前加餐,一個人的深夜食堂,還是不錯的。
餐邊柜緊挨著吧臺,做了嵌入式設計,上下都是儲物區,由柜格和抽屜組成,用來收納生活雜物,中間則是開放柜格,內嵌隱藏式燈帶,還有白色的洞洞板,美觀實用。
廚 房
廚房位于玄關左側,把二者之間的非承重墻體都拆除,改為“玻璃屏+玻璃移門”,隔而不斷,提升了室內的采光。
廚房的配置簡潔干練,墻面上半部分用微水泥做造型,中間安裝原木置物板,用來擺放餐廚用具,下方則貼著白色小方磚,豐富了視覺層次。
置物板下方配設了一字型收納桿+S型掛鉤,輕松擺放鏟子、勺子等常用的廚具。
窗戶配上一塊白色紗簾,保證了室內的隱私,還不會影響正常采光。
主 臥
把主臥、書房和衛生間做了調整,組合成一個大套房,并借用部分次臥區域,獲得一個獨立衣帽間,這樣的配置真是太舒服了!
入口處安裝了水泥灰色的移門,打造出工業風的漂浮感,門上有六個圓形的小洞,具有一定的透光性。
穿過洞洞門進入到主臥套房,整體色彩比較簡單清爽,完全區別于公共區域,床頭墻面預留了壁燈和投影儀,方便看書或看電影,臥室走廊貼海報的位置,是衣帽間的入口,做了隱藏門。
書 房
書房很敞亮,書桌靠窗擺放,兩側都是頂天立地的墻柜,整體布設簡潔利索。@杰瑞喜歡在這里安靜地譜一首曲子,有時甚至在這里待上一天……
主 衛
書房旁邊是主衛,做了圓拱形門,柔和的線條,顯得復古優雅。
主衛呈三分離模式,淋浴區和馬桶區分居兩邊,用玻璃門隔開單獨使用,不規則美容鏡精美靈動,加上暖光燈帶的加持,更加溫馨浪漫。
馬桶區不大,以白色為主基調,不會顯得壓抑,側面做了入墻式層板置物架,使用起來很方便。
音 樂 角
@杰瑞去過不少地方,尤其鐘愛上海這座城市,于是在餐廳角落里規劃了一面音樂墻,墻面由彩繪玻璃磚和胡桃木板組成,內嵌隱藏式燈帶,復古又迷人,有種大上海酒吧的味道!
音樂墻上的電吉他、音箱和CD機,都是@杰瑞的最愛,閑來沒事兒,約上幾個隊友,“切磋”一翻技藝,盡享愜意的居家時光。
次 臥
次臥目前是作為客房使用,室內風格是復古工業風,床品是屋主媽媽準備的,意外的搭調,偶爾親友來家留宿,就可以住在這個房間,后期會根據需求,再重新調整布局和家具的配置。
壁燈和廚房相呼應,可以隨意調整角度,書桌上擺放一幅喵星人畫作,靈動可愛。
床尾的墻角里安置一個紅色鐵藝掛衣架,鮮亮惹眼,同時豐富了內室功能。
次 衛
次衛的裝飾風格與主衛截然不同,用色大膽而時髦,精致卻不媚俗,讓人眼前一亮。
馬桶區做了馬賽克地板+小方磚紅墻,相當別致,鐵藝玻璃門也是格外復古,小天使吊燈懸掛在角落,搭配簡美的白色窗簾,絕絕子!
干區采用飛機頭的mini洗手池搭配飛賊燈,旁邊安排一組家政柜,開放格用來擺放一些洗衣用品,特別實用。
