「屋主專訪」一人住116㎡,到底有多爽?
來源:愛空間科技(北京)有限公司 日期:2022-10-28 14:54:44
- 詳細介紹
這是我在廣州工作多年自己買的房子,其實距離裝修完入住已經快三個月了,一直想把整屋的效果分享出來,截至上周,終于把家里各處所需的裝飾湊齊,算是添上了最后一筆。作為一個喜歡獨處和宅家的人,房子沒買的時候就已經開始瀏覽家裝的APP了,摩拳擦掌設想無數可能,等到真的開始裝修,腦海中早已構建出了理想生活的樣子。
說來也算幸運,逛家居體驗館的時候認識了一位很熱愛生活美學的設計師,約談之后便一拍即合,回家整理了滿滿當當的8頁PPT的未來生活構想,開放式客餐廳、中西廚分離、客廳休閑角、臥室辦公區、全屋定制的收納體系、簡潔溫馨的風格......最終設計師都幫我一一實現~
戶型:三室兩廳
風格:現代簡約
常住人口:1人
面積:116㎡
裝修花費:23萬
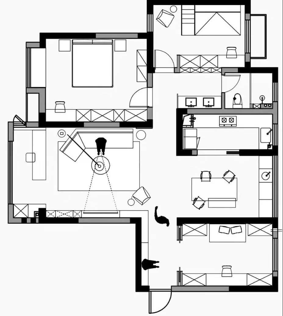
原始戶型圖
設計師進行現場勘驗以后,發現房屋存在以下缺陷:
①進門區域采光欠佳,廊道過長,影響入戶舒適性。
②客廳欠缺收納空間和多樣化功能。
>
③餐廳面積有限,廚房內部很局促。
④臥室過多顯得浪費,有待優化和提升儲物性能。
平面布置圖
調整策略:
①將玄關柜與客餐廳壁柜一體式打造,并改動書房門洞位置,提升整體采光,視覺上更顯大。
②客廳納入陽臺使用,提升室內面積,便于增設休閑角。
③拆除北面陽臺的墻體,使餐廳活動范圍充裕,并安置西廚區,緩解廚房的儲物壓力。
④進門的房間改為書房,完善全屋功能,避免浪費。
客廳
進門第一眼看到的是我自己拼接的手工北極熊,超級可愛!從搬家到現在每天弄一點,現在終于完成了,還挺有成就的。
原本進門比較狹長昏暗,為看起來更寬敞明亮,把玄關柜和電視柜一起打造,并將書房門洞微調,視覺上開闊許多。頂部的射燈是感應的,回到家打開門就會自動點亮,不會黑漆漆。
客廳
客廳與陽臺合并使用后,落地窗外的光線全部都可以照射到家里,溫暖又明媚。灰白木三色搭配其中,沒有過多的裝飾,大量留白+頂面做無主燈處理,氛圍干凈、簡潔。
沙發背景墻用微水泥工藝進行過度,與旁邊的木飾面和白色吊頂形成不同的色塊,整體顯露出典雅大氣的風范。為了呼應墻面的色彩,沙發相應選用了同色系,和諧美觀許多。
電視背景墻是滿墻的壁柜,懸空的造型讓大體量的家具減少了厚重,無把手的外觀讓視覺上更顯輕盈流暢。
大部分是封閉柜格,塞滿了居家雜物依然看不出來凌亂,少量的開放格用作裝飾區,放些書籍或者藝術品都很有情懷。
只要不上班就基本宅在家,追個劇、看本書,邊喝咖啡邊慢下來品味生活,曬曬太陽緩解一周的勞累,治愈效果滿分!
Q:客廳最讓你滿意的空間規劃是什么?
A:如你所見,一定是休閑區。我怎么都沒想到,提前預埋了鋼架,然后木工現場制作了這個桌子,平時可以在這邊看書、品嘗美食和賞景,約上閨蜜來家里,這邊還是一個小酌八卦的好地方。
Q:陽臺怎樣布置最合理?
A:洗衣機烘干機布置在陽臺是最方便的,只要陽臺充裕,最好就布置在這邊,畢竟經過暴曬的衣物,能防螨,殺菌;如果戶型沒有陽臺,衛生間不具備條件,那就可以考慮規劃在廚房的櫥柜下面,節省空間,對戶型很友好。
餐廳
餐廳和廚房用玻璃門進行隔斷,中西廚分離,木飾面全包廚房外部墻體,即便是日積月累的油煙都可以清潔干凈。
作為一日三餐的享用之地,個人比較看重氛圍,黑色的復古茶幾和四把餐椅,搭配簡約的線燈,利落且高級,招待親友倍有面子。
餐廳靠窗的位置是西廚區,充足的操作臺使廚房得以釋放。我個人偏向于喜愛西餐,經常在這邊做早餐和晚餐,準備再買個咖啡機和西餐設備來深入研究美食。
角落里布置的油畫是自己畫的,特別喜歡這種什么都靠自己實現的體驗,還別說,這顏色和餐廳相當搭,越是簡單的東西越耐看。
廚房
廚房內部整體是以黑白為基調,讓內部有了明顯的反差,彰顯出了生活的煙火氣。
Q:廚房裝修要注重哪些細節設計?
A:經過我的使用心得,覺得最重要的是臺面高度,它決定了使用是否方便舒適,太低了腰痛,太高了手酸,合適的高度是根據使用者身高決定;其次是照明,吊柜下加底燈極有必要,切菜備菜時比較明亮。
主臥
主臥室延伸了客廳的風格,白色吊頂+灰色墻漆,營造出臥室本該有的溫馨,清爽前衛。
以水泥灰肌理上墻,透著沉穩和自然,摒棄任何造型,相比過于繁復的裝飾、豐富的色彩,輕松而寧靜。
床邊柜不強調儲物,以小眾的黑色磨砂金屬材質為主,只需滿足睡前放水杯、手機等重要小物件即可。
臥室一角布置入墻式到頂的組合柜,提高了整體的儲物率,既是衣柜、梳妝臺,又是辦公區。
書房
次臥規劃為獨立的書房,可以滿足辦公、閱讀、學習,定制一組轉角衣柜的配置,還兼具了衣帽間的功能,滿足多樣化的需求。
疫情期間在家辦公,環境安逸,配置舒適,要多愜意有多愜意。
衛生間
灰色水磨石墻地磚一體,清雅俊秀,在暖色燈光的映襯下極具品味。
