醫護夫婦打造雜志風質感家,98㎡藏著一個「復古秀場」
來源:愛空間科技(北京)有限公司 日期:2022-11-01 11:20:02
- 詳細介紹
『說在前面』
認識女朋友@妮妮是在2020年夏天的旅行途中,后來家里著手準備結婚,年底開始打算裝修這套位于廣州的新房。由于@妮妮是醫護工作人員,奔赴前線后得到了我們一致的體恤與支持,后期直到結婚前都分隔兩地,裝修一事自然就全權交給我打理了。
和設計師聊起兩人曾經無數次暢想過理想生活的樣子:閑暇時候,可以睡到自然醒;一起下廚做彼此最愛的美食;窩在沙發里,一邊碰杯,一邊看電影閑聊生活......最終的方案遵循女朋友喜歡的低飽和度色調,保留簡約復古的北歐風,儲物功能集中在餐廚,既有展示性又有收納性。家里看得見的物品很少,空間通透互動便利,搬進來也好幾個月了,依然是嶄新無痕的樣子。
戶型:兩室一廳
風格:北歐風
常住人口:2人
面積:98㎡
裝修花費:22萬
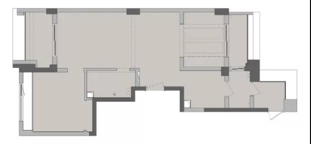
原始戶型圖
戶型本身有很多局限性,功能區占比不合理,零碎狹窄的情況突出,將破碎的空間優化整合,處理好采光問題是最關鍵的點。
平面布置圖
設計師給出的改造策略如下:
①客廳與餐廳打通剪力墻,提升敞亮度。
②餐廳面積向原本的臥室拓展,臥室移至西側,整合動線。
③臥室凹陷的墻面定制儲物柜,使突兀的格局變得更平整。
④浴室柜外移,較好地進行干濕分離。
客廳
客廳墻面留白去除多余裝飾,化繁為簡,用素雅色調來詮釋北歐風的精髓。既能夠提亮環境,還能為后續居住的家裝布置留足可發揮余地,接納更多可能性。
黑色皮質+木質扶手的沙發搭配不規則仿動物皮地毯,精致飽滿的韻味十足。造型簡約的落地燈、裝飾畫和靠枕一起促成了張弛有度的美,自成一派風景。
沙發另一側放置了胡桃木邊柜,用來放些隨手取用的書籍、果盤和水杯等等。邊柜旁邊是一個開放式置物架,擺放上漂亮的小物件還能起到裝飾作用。
藤編元素的中古風座椅是我的最愛,高度適中,傾斜的坐墊讓身體得到最大程度的放松和包容,治愈感滿滿。
空閑的桌面放點鮮花和裝飾品,一鏡一花,夢幻的意境簡直美呆了。
餐廳
公區的采光主要靠餐廳旁的窗子來提供,所以客餐廳形成一個開放的格局十分必要,通透的環境能夠讓空氣和陽光肆無忌憚地灑進來,仿佛置身北歐的自然氛圍之中。
餐廳最醒目的亮點在于餐邊柜,帶弧形線條的灰色系通頂柜,冷靜而大氣,柜門均是封閉的,局部帶有透明玻璃承載展示功能,收納餐具以及點綴環境都OK!
餐廳和客廳以地面來作區分,一邊是木質魚骨紋地板,另一邊是水磨石顆粒地磚,精致度較高。
為了中和這種冷靜的格調,餐桌椅選擇北美胡桃木材質和藤編元素,日常用餐格外溫馨。
餐廳旁的窗戶鋪上了厚實的木板,尺寸與窗臺吻合,是冬日里女朋友最喜歡待著的地方,拿本書一坐就是一下午。
連接餐桌的地方是一個吧臺,配備兩張吧椅可以在家享受休閑的時光,喝茶聊天,非常愜意。
吧臺角落的柜子主要承載休閑區酒水杯盞的收藏,半透明的長虹玻璃若隱若現,美觀且防塵。
廚房
作為幸福家庭煙火氣的產地,有個高顏值廚房是多么重要,以開放式的布局來打造廚房,較好地彌補了采光和面積不足的問題。
廚房顏色比較小眾,墨綠色櫥柜散發著古典北歐的神秘,搭配現代的煙機灶具設備,儲物區、洗滌區和烹飪區動線布局合理,兩人一起做飯也不會擁擠。
主臥
主臥以恰到好處的低飽和度色系為主,融入藤編元素的大床和衣柜,自然氣息外露,舒適慵懶的氛圍包裹著四周,一進門便能感覺到放松。
一幅黑色系人物裝飾畫、一盞亮黃色玻璃臺燈,讓視線集中在此處,體會到主次有序的細節。
臥室以砂黃色墻裙塑造復古效果,一旁放上尤加利葉作為裝飾,不經意間就是一處室內好風光。
臥室凹陷的墻面結構不可改變,所以順勢在此處增設懸空桌臺,平時在這邊梳妝、閱讀,突兀的結構得到了弱化與改善。
次臥
次臥的風格非常淡雅簡約,白色墻漆+北歐家具,整合起來沒有一絲臃腫,是父母休憩身心的好地方。
衛生間
浴室柜外移,使如廁與日常洗漱分離開來,兩人起床上班還能避免擁擠,節省了較多時間。
值得一提的是墻面的綠色馬賽克瓷磚,半墻堆砌+古銅色壁燈,美得一塌糊涂。
