“重啟”10年老房,超高的空間利用率,設計師給100分
來源:愛空間科技(北京)有限公司 日期:2022-11-02 08:36:29
- 詳細介紹
說在前面:
每次回家開門的瞬間,都被入戶視角治愈~要說這次老房重裝最不后悔的地方,可太多太多了。尤其是進門玄關,就算住了半年多,依然特別喜歡。
這是我們一家人居住了10年的地方。屋子里的家居陳設都不知道是哪個年代流行的風格了,但不想全部推翻,因為都是滿滿的回憶。其實改造沒有想象中那么難,事先列出需求清單,把它交給設計師,接下來就是每天收獲一個驚喜啦。
具體的改造如下:
①儲物空間。原先的儲物略顯不足,希望在玄關、臥室等區域,加入收納功能;
②功能區過渡。原先的客餐廳存在錯層高差,希望能和諧的過渡,打破傳統布局;
③居住便捷。我們一家五口人,兒子在上小學,希望能在家居氛圍和動線規劃上同時滿足三代人的生活習慣。
房屋信息:
面積:150㎡
戶型:三室兩廳兩衛
常住人口:5人
裝修成本:23萬
風格:北歐風戶型圖
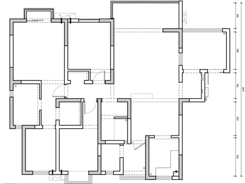
這是改造前的戶型圖,可以看出整個房子被分隔成許多零碎的空間,空氣流通度和采光性都受到阻礙。過道狹窄,居住動線也不流暢,150平的面積居住起來卻讓人覺得“很擠”。
重新規劃后的圖紙,功能分區一目了然,總結起來有幾大亮點:
①玄關改造
拆掉了玄關與客廳之間的墻面,并將左右兩側形成一個“L”型多功能區。玄關柜、墻面及陽臺都暗藏玄機。②弱化錯層
借助拓寬臺階+頂面疊級的處理,減少客餐廳之間錯層生硬感,并借助沙發區域,來銜接客餐廳、陽臺。③刪繁就簡
在明確了三個臥室的需求后,去除不必要的隔墻,將房間相互整合,優化布局。玄關
改造后的玄關進門右手邊設計成換鞋區域,墻面加入洞洞板,可以讓掛放功能更為彈性化。
進門左手邊靠墻懸掛穿衣鏡,簡單方便。玄關柜中部是開放式臺面,用來擺放鑰匙、花瓶或香薰。底部是開放式的放置常穿的鞋,很實用。
玄關處的陽臺中加入了植物槽,種植上花草顏值太高了!玄關柜銜接陽臺處裝上鏡面封板,既能遮蔽原先的管道,也延伸了窗景,別致美觀。卡座能滿足一家老小同時進門換鞋的需求。
玄關通往客廳的走廊被封閉了起來,用隱形平移槅門遮擋,視覺上不顯凌亂。
而內部則形成了一個行李箱、玩具收納小倉庫。
考慮到當下疫情的問題,每天回來都得洗手消毒,因此在改造中,設計師就在玄關處加入了一組洗漱臺,方便回家時洗手消毒。
換鞋?衣帽掛放后洗手消毒,形成一個很流暢的入戶動線,也利于培養孩子換鞋洗手的好習慣,生活質量瞬間提高了n個檔次。
客廳
玄關與客廳之間設置推拉門,不得不說,這樣一個可以自由拉合推拉門,真的算是創意感十足的設計。
推拉門在客廳一側成了電視背景墻,將電視直接懸掛在上面,家里人需要看電視時將玄關與客廳的門拉上。第一次來我家的人通常會“找不到出口”。
客廳以沙發為中心,間接融合了餐廳用餐,客廳閱讀,落地窗多功能區,讓家人同處于客廳卻能做各自喜歡的事情,看書、聊天、看電視……這樣愜意舒適的居家氛圍,賦予我們不一樣的幸福感。
沙發一旁的層架式的書柜滿足書籍的收納,也能擺放家里的各種瑣碎物品。柜子挑空,能保持全屋通透,底部柜子做卡座,方便隨時坐下來和家人或者朋友交談。
陽臺與客廳之間加入一組電動投影幕布,周末時分,完全可以開啟娛樂模式,不管是沉浸式的互動游戲,還是來一場電影串燒,一家人的笑語歡聲都會在此蔓延到每個角落。
陽臺區域還加入了我最喜歡的大書桌,可以看書創作,也可以辦公休息。當然,這里也成了父子倆的手工操作臺。
刻意壓低了吊燈的高度,讓燈光和人更加親近,獨處有時能靜心,歡聚有時能悅情。
餐廳
通過加入弧形線條使得原本生硬的錯層變得有趣生動,拾階進入餐廳變得充滿了儀式。在弧形轉角處配了一盆大型植物,增加綠意和生機。
餐廳裝修偏向簡約北歐,鐵藝和木藝的巧妙結合,讓人倍感舒適。
選用木色+淺杏色系,營造居室樸實自然的氣息。餐廳往里走左側是廚房,為避免油煙在室內四散,廚房特地做了口袋移門,平時收起移門即是開放廚房,必要時拉出移門就能阻隔油煙。
廚房
櫥柜高度是根據身高定制的,操作起來更加輕松應手,灰綠色門板搭配白色小方磚堆砌出視覺層次,敞亮整潔。
家政間
與廚房一墻之隔是家政間,配置洗衣、烘干、熨衣疊衣、清潔工具收納等功能,囊括生活中的凌亂與瑣碎。
主臥
床頭背景墻也采用了灰綠色,飽和度很低,看起來不刺眼。配上灰色的床和怒色的衣柜,這樣溫柔的撞色美翻了~
衣帽間做了隱形門設計,采用雙向開門,方便我和老公各自拿取自己的衣物。
床尾面積比較寬松,布置舒服的閱讀角,周末或者晚上一個人呆在角落里靜靜看書,絕對是美事一樁。
主衛
主衛半墻鋪貼白色條磚增加空間序列感拉高層次,結合霧綠色墻頂一體乳膠漆,衛浴室也可以輕松活潑起來。
安排雙人洗手臺方便倆人同時洗漱,采用大面長鏡柜拉寬視覺,鏡子背面是收納區。
老人房
這間是用來做老人房,色調和風格盡可能簡單溫暖。床、柜子等陳設貼合老人心意,利用咖色布藝+輕紗組合,營造雅而不俗,簡潔大方,點到為止的搭配氛圍。
水藍色結合櫻桃木的床頭,以及中性暖灰色調的床品,共同構成了這個溫暖沉靜的居室,為父母編織自由寧靜的退休生活。
小兒子房
兒童房不管是色彩還是功能,都有利于孩子觀察、思考、游戲。
三分之二的空間都是用成品活動家具組成,這樣可以隨著孩子成長而變化,增加將來改造的可能性。
床頭背景選用環保的定制壁畫,以黃色、霧霾藍和米白色幾何拼色,調和居室色彩的同時讓兒童房更加活潑靈動。
衣柜+隔板架的組合,玩具和繪本通通可以放進去,又是一片干凈清爽的小天地~
次衛
暗色系真的顯高級,淺米色的水磨石磚墻地通鋪,模糊墻地交界,無主燈讓衛生間在明暗之間展露出格調。
淋浴房增設卡座,可以放松坐浴,減輕老人沐浴過程中彎腰帶來的負擔和安全隱患。
