喵主子用隱形門打造治愈宅,美到攝影師朋友不想走
來源:愛空間科技(北京)有限公司 日期:2022-11-02 15:06:49
- 詳細介紹
說在前面
這不是網紅攝影基地,是我們住了半年的家。
裝修時迷上了很火的侘寂風,奈何新入手的這套房才90平,走純侘寂缺了空間質感,所以整體色調偏奶油調一些。玄關柜、墻柜、櫥柜、衣柜……能全套定制的就絕不單買,盡量保持極簡大方的基調。硬裝部分為我們“量身定制”,最讓人驚喜的是原以為主臥衣帽間破滅了,設計師竟生凹了一個出來,還不影響其他房間的使用,深刻體會到找到合拍且靠譜的裝修團隊有多重要!
我和家屬都是“斷舍離控”,不會堆砌太多不用的東西,所以全屋看起來很整潔,攝影師朋友常打趣我家適合做攝影場地。加上設計師給我們安排了挺多組收納柜,即使以后有了小孩,各種物品收納也是妥妥的,不會顯得凌亂。
房屋信息:
面積:90㎡
戶型:三室一廳兩衛
常住人口:2人
裝修成本:24萬
風格:現代簡約
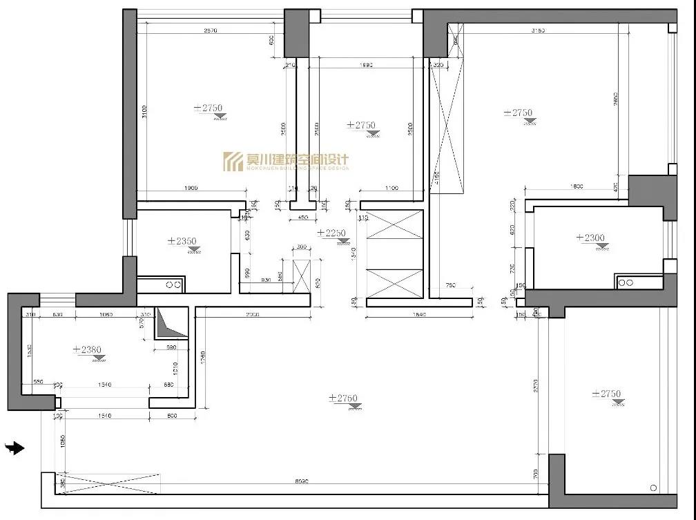
戶型圖
戶型分析:
1. 承重墻少,可塑性比較強。
2. 玄關視野不夠開闊。
3. 電視背景墻完整性被臥室門破壞。
4. 走廊儲物空間略雞肋,不好利用。
設計策略:
1. 進門右側做整排的柜子,增加無玄關的儲物面積。
2. 開放式廚房與“橫廳”結合,餐桌結合島臺作為補充。
3. 主臥更改入口方向,從而保持電視背景墻的統一。
4. 主臥增加衣帽間,讓睡臥區看起來更加方正。
5. 更改次臥入口,規避了出入時就會看到鏡子的不適,動線得到了極大的優化。
玄關
玄關當然少不了定制的鞋柜,中部留空擺上可愛的小公仔與香薰瓶。柜門無把手設計十分高級,門縫帶出的線條節制又理性,也有不爭歲月的侘寂之美。
客廳
溫潤的奶油墻漆搭配同色系清新的家居,配上溫暖的燈光,展露出一個溫馨的家。搬進新家后最是熱衷于請朋友來家里做客,這么美的客廳是十足的門面擔當。
大面積的微水泥將干凈至簡的氛圍延伸到每一個角落,極具穿透力,靈動又純粹。為了給日常活動騰出更多地方,設計師用最少的材料最大限度地留白。
棕色+米白色的沙發慵懶可愛,回到家第一件事就是撲在上面全身放松,太治愈了~沙發左邊的墻壁上橫裝一盞黑色壁燈,實用且好看。
右側拱形門洞藏著小心機——用一盆看似簡單的綠植點綴,清雅自然的意境,同時豐富了色彩。
“砌”出來的電視墻真的是顏值天花板。右側用內凹弧面過渡陽臺拱形門洞,主體部分用壁龕形式安放電視機,美觀度滿分。
陽臺
為了突出陽臺的美,拍照時特意關掉了客廳的燈。去掉隔墻后,顯得更大了。做回字形吊頂,并安裝射燈,氛圍感爆棚。
采用豎百葉窗簾,保持通透和采光。加入洗衣機和烘干機組合,并收納在右側雜物柜中,很方便。
左側裝了一排收納柜,木皮鏤空元素心儀好久,終于在新家中給安排上了。
原木與留白,穿插著些許的中式元素,便造就了一處飲茶區。
居于此,兩張圈椅,一壺茶,于鬧市中得閑飲茶,靜驀如畫,閑適的美好悄然而至。
餐廳
餐桌、島臺特意設計成相互拼接一體化的模式。
素凈的原木色搭配溫和的奶油白色,溫柔的氣息干凈又純粹,讓人挪不開眼~
餐桌與西廚操作臺平行放置,與廚房形成回字動線,可容納更多日常的互動軌跡和趣味性。
島臺可作為吧臺,帶有水槽區,蓋上鋼蓋板還可作為操作臺使用,所以平時無論是需要洗切水果,或是做西點輕食,操作都非常方便快捷。
簡約溫暖的色調傳達靜謐安寧的氣質,悠然自得真的超治愈。
廚房
黑白配的中島臺與櫥柜色調保持一致,整體時尚有品,增添了現代舒適和生活儀式。
結束了一天繁忙的工作后,回到家中做頓簡單舒服的晚餐成了我和先生在都市生活的寄托。
開放式廚房更顯寬敞明亮,兩人在家,可到之處,視線也隨處陪伴。
暖白色的櫥柜清爽又溫馨,烹飪區上方吊柜藏了煤氣表,因此采取百葉門,讓空間實用美觀兩不誤。
走廊
走廊盡頭是書房,采用玻璃門,讓過道能有充分的采光。
主臥
無框門帶來白凈無暇的視覺體驗。極簡空明,更是營造了一種微妙給人想要探索的欲望。
主臥一分為二,分為睡臥和衣帽間。整面墻的通頂衣柜,每次換衣服都可以隨心所欲地挑挑選選,也能滿足兩人所有衣物和大件收納。
經過衣帽間往里走是主臥,層次遞進的白色背景墻,相互拼接,左轉角、圍合著睡臥,簡潔的無主燈呈現出一個純凈的生活場景。
主衛
主衛是灰色調,墻面采用水磨石磚,頂部暗藏無主燈帶,極簡優雅。干濕分離的玻璃浴室,90*100的尺寸,洗澡時完全夠用。
次臥
↑過道左側是次臥。
因為長輩也會偶爾過來串門,所以次臥是用來給屋主父母小住的。
布置上實木床,鋪上簡約灰的床單,窗簾采取透光度較好的卷簾,很簡單,也很舒適。
木質材料運用,和諧流暢的自然光線,營造出了質樸溫潤的平和,平靜且治愈。
書房
書房的色調,與整體的基調相呼應,白色簡潔,寧靜。
我和先生希望書房是獨立,不受打擾、可集中精神辦公的區域。當然,將來也可以靈活地改造成第二個獨立的睡臥。
初秋時節的居心地搬到了這里,總之在書房里待得每個時刻都珍愛,每個角落皆心水。
靠墻定制書桌+書柜結合,把轉角位置也利用起來。窗戶旁放上一盆綠植,防止眼睛疲勞,也能很好地裝點房間。
公衛
次衛干濕分離,洗手臺外置。太陽花帶燈面鏡完全是被顏值吸引的一款,輕奢的風格,不光美還很有實力,和爵士白的洗手臺面搭配起來很高級。
洗手臺懸空方便清潔。買了一塊半圓形地毯鋪在衛生間濕區門口,毛絨絨的踩上去柔軟舒服,喜歡。
