誰說IT男審美差?字節員工の「摩登前衛宅」高調起飛!
來源:愛空間科技(北京)有限公司 日期:2022-11-03 15:00:02
- 詳細介紹
說在前面
這是一對90后小夫妻的婚房,男主是字節員工,女主則經營著一家買手店倆人日常工作特別繁忙,加班也是家常便飯,對于裝修能投入的時間確實有限。
為了免去拆改的麻煩,在買房的時候,屋主特意選擇了這套戶型比較好的毛坯房,無需做戶型調整,便可“直奔主題”。家裝時封閉了陽臺,納入室內設計,優化客餐廳動線,然后用經典的黑白色作為主基調,營造出現代摩登的氛圍,并巧妙運用暖意滿滿的紅色作為跳色,提升空間飽滿度,帶來不俗的視覺效果,再輔以各類藝術畫、飾品進行裝點,最終呈現出這套讓個性十足的藝術美宅,讓人一眼難忘。
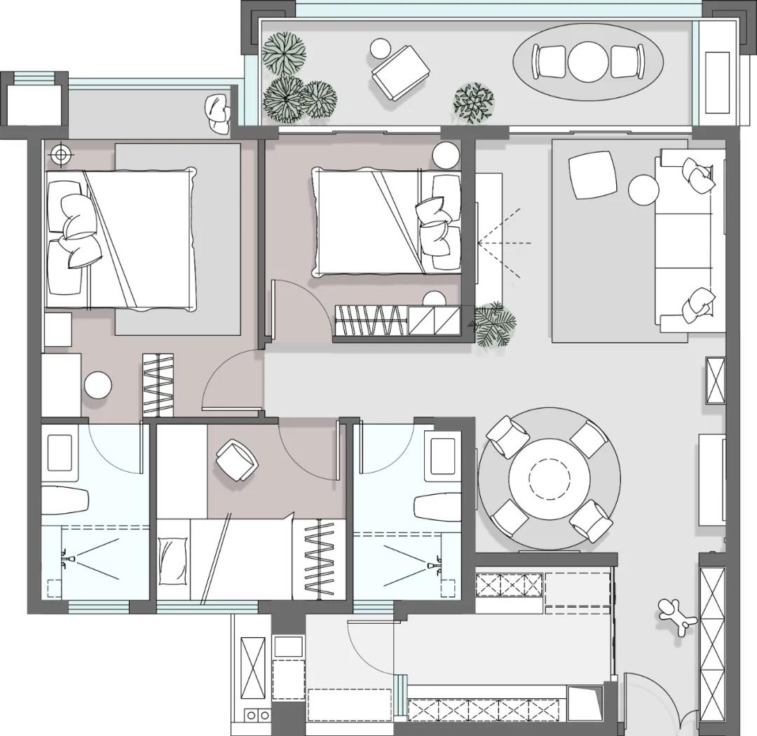
平面布局圖
戶型分析:房子比較方正,動靜分區,三個臥室集中在內側,免于公區的干擾,主臥帶飄窗,次臥連著陽臺,非常舒服,家居動線也很合理,我們在未大幅度改動硬裝的基礎上,主要運用協調的軟裝和色彩搭配來裝飾這套住宅。
房屋信息:
面積:115㎡
戶型:三室兩廳兩衛
常住人口:2人
風格:現代
裝修成本:22萬
客 廳
客廳以牛奶白與典雅黑為主基調,仿佛在演奏著一部優美的鋼琴曲,讓人褪去滿身的疲憊,只想靜靜地徜徉在這“溫柔鄉”里。
白色布藝沙發靠墻擺放,舒展著松弛與愜意的氣息,地面鋪設一塊絨面地毯,張揚隨意的線條打破規則束縛,大膽而時髦。
沙發背景墻采用一幅抽象藝術畫進行裝飾,與地毯相互呼應,旁邊是三幅屋主親手制作的“一”字形綜合材料裝置,寓意著“三生萬物”。
采用無主茶幾設計,給客廳更多留白,配設一張簡潔精巧的黑色小邊幾代替功能,優化了家居動線,騰出更多活動空間。
餐 廳
餐廳與客廳連通一體,增強了公區的通透性,延續整體的黑白主基調,簡單而高級,屋主希望餐廳能夠活潑些,于是我們用紅色調和其間,釋放出熱烈溫暖的情愫,兩邊墻壁配掛藝術畫,協調的色彩搭配與餐廳摩登時尚的氣質相得益彰,掛畫內的紅椅對應著紅色餐椅,正是設計時的小巧思。
餐桌上放著女主最喜歡的紫黑色插花,還有精美的刀餐叉擺件,非常有創意。
黑色餐邊柜靠墻布置,是個亮眼的存在,輪廓利落簡約,回蕩著安靜典雅的韻味,不銹鋼鏡子曲線流暢,炫酷前衛。
香薰、燭臺、花瓶等物件和諧地搭配在一起,滿滿的生活儀式感,藝術家張占占的PUPU熊《登月》,帶來一絲溫馨與可愛。
廚 房
廚房是長條型布局,靠墻打造白色櫥柜和吊柜,滿足各種餐廚用具的收納需求,地面鋪貼灰色瓷磚,耐臟又耐看。
靠里區域比外面寬敞一些,于是將洗、切工作安排在這里,獲得更多的操作空間,水槽上方的墻面安裝了掛鉤,可以順手擺放一些小物件。
主 臥
主臥灰色系的軟包大床搭配窗簾舒雅又大氣,紅色點綴其中,融入一抹靚麗的色彩與溫情。
床頭背景用藝術屏風進行裝飾,大膽而富有個性,呈現出抽象神秘的意境,任人品味。
床頭配設一盞金屬落地臺燈,質感輕盈,可靈活調整使用角度,滿足夜晚床頭閱讀時使用,很是方便。
將黑色延伸到床頭柜和梳妝臺,再用金屬元素優化細節,別有一番復古情調。
次 臥
次臥的布設簡約素雅,床側打滿整面黑色書架,下半段做成書桌使用,配上一個精巧的紅色臺燈,提亮了空間。
背景墻以一幅壁畫進行裝飾,韻味無窮,棉麻床品親膚柔軟,給人舒適的睡眠體驗,緩解一天的疲勞。
多 功 能 房
根據屋主需求,賦予多功能房不同的使命,以榻榻米的形式呈現,涵蓋了“休憩+收納+辦公”三項功能,書桌上放置著極具特色的唐卡,自帶的藝術氣韻充盈在房間里,很有調性。
陽 臺
陽臺與客廳連通后,設置成休閑區,黑白相搭的桌椅,造型精巧別致。
在晴朗的天氣里,和煦的陽光透過百葉窗撒向室內,心情也隨之變得舒緩慵懶,不論是在此享用美食還是日常休閑,都十分舒適宜人。
衛 生 間
衛生間同樣是沉穩安靜的格調,黑色的地板、深藍色的墻面、白色的盥洗柜和馬桶,相互搭配在一起,典雅大方。
