年度最走心的120㎡Loft,兩室變三室,舒服比漂亮更重要~
來源:愛空間科技(北京)有限公司 日期:2022-11-04 14:10:28
- 詳細介紹
說在前面
二十多年前,在大多數人眼中,丟掉“鐵飯碗”的工作選擇去外地經商,好像是一個瘋狂且不太明智的決定。就是在這樣的質疑下,林先生夫婦來到有“粵戶閩庭,吳頭楚尾”之稱的南昌生活打拼,經過歲月的沉淀,當初的選擇也有了最明顯的答案。
如今一家人生活富足,兒子小包上了大學,夫妻倆看到這套毛坯疊拼式洋房,當即購入了它,決定按照自己的喜好進行裝修。
房子總共三層,最上面是狹小低矮的儲物室,一二層則是生活空間,整體功能區劃分私密性很強。一家三口希望能夠有各自獨處的天地,也有相互交流共享的區域……
于是我們根據屋主需求,對戶型進行局部調整,在一樓橫廳內砌一面墻,將客廳一分為二,隔出休閑區,形成環形動線;封閉二樓挑空,打造成書房;軟搭上則是林太太親自挑選和搭配,大到家居沙發,小到配飾擺件,每一處都極盡用心,最終的家裝效果非常好,高級大氣的活動區,清爽舒適的休息區,讓人愛進心坎。
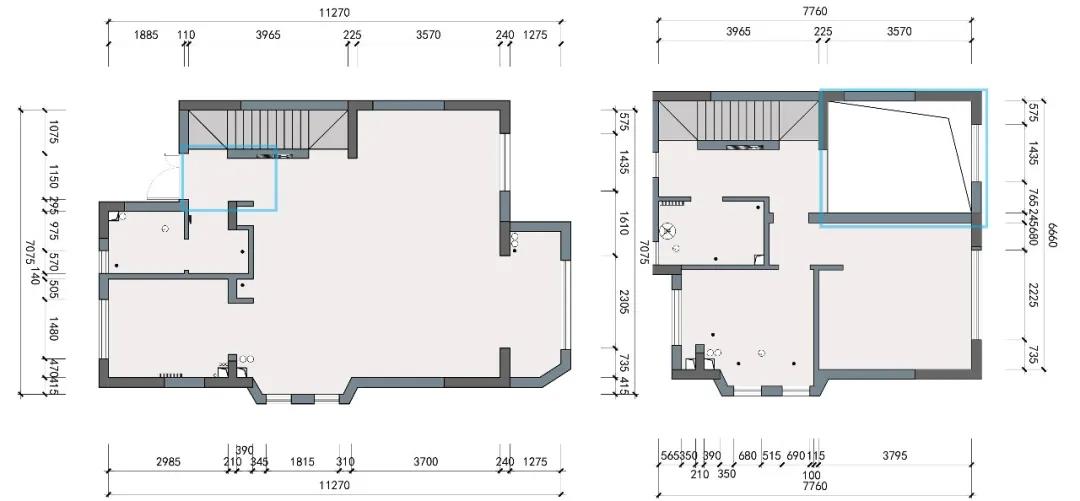
戶型布局圖
戶型分析:
①入戶玄關左手邊是樓梯口,右手邊是衛生間干區入口,致使玄關處幾乎沒有儲物空間;
②二層只有兩間臥室和一個衛生間,挑空的設計占據整體四分之一的面積,空間利用率不高。
戶型改造:
①拆掉干區的墻,加設頂天立地的玄關柜,背面則對著干區,同樣做成收納柜,以滿足衛生間的儲物需求;
②在橫廳內砌一面小墻,隔出休閑區,與客廳貫通相對,形成環形動線;
③餐廳旁設計一個西廚,并用島臺與用餐區銜接在一起,完善了廚房功能;
④封閉二層挑空,兩臥變三室,多出空間用作書房。
房屋信息:
面積:120㎡
戶型:三室兩廳一衛
常住人口:3人
風格:現代簡約
裝修成本:24萬
玄 關
入戶玄關左手邊是通往二層的樓梯口,設有一個大理石基底的展示臺,放上可心的小擺件,暖黃色的燈光灑在上面,顯得柔和溫馨,更平添幾分藝術感。
客 廳
從玄關往里看,客餐一體,整個家居互動性很好,地面通鋪灰色大方磚,與整體相呼應。
客廳采光很好,讓人心情放松,無主燈設計,整個頂部干凈利落,依靠明裝筒燈、射燈及落地臺燈實現必要的照明需求,簡約大氣。
湛藍色絨面沙發靠墻擺放,很有安全感,配置大理石圓面茶幾,這是林太太比較心儀的單品組合,自由、治愈。
背景墻采用木飾面+大理石拼接設計,沉穩理性又不刻板,簡簡單單,已是最好的安排。
這里原本是個大橫廳,在中間砌一面小墻,并用橄欖綠的石膏板進行裝飾,既可作為電視背景,又巧妙地將區域劃分開,做出休閑區,兩側留出過道,可自由穿行,實現隔而不斷的絕妙效果。
休 閑 區
休閑區與玄關之間用長橢形的長虹玻璃隔開,起到緩沖的作用,又能保護室內隱私。
電視墻利用率極高,背面定制入墻式儲物柜,方便收納擺放,側面則嵌入做大理石基底的展示臺,放上一個藝術擺件,與玄關相呼應,頂部安裝一盞小射燈,更有格調。
休閑區是林先生最喜歡的地方,可以在這里在喝茶、看書,中央擺放原木桌椅,造型簡約別致,比較討喜,靠墻做整面墻的儲物柜,開放格陳列書籍,抽屜則用來收納,很是方便。
餐 廳
餐桌與島臺連接,純白的臺面與木質儲物柜相結合,美觀又實用。
餐廳側面是廚房和衛生間干區的入口,使用半透明的長虹玻璃拉門,干區外還利用墻壁凹陷做開放式展示柜,方便隨手擺放一些小物件。
島臺另一側作為西廚使用,補充廚房功能,和島臺同色系的木質操作柜經典耐看,將烤箱和臺盆完美嵌入其中,干凈又整潔。林太太現在也有自己大展身手的地方,可以好好地享受生活了,
廚 房
U形廚房的空間利用率很高,拿洗切炒動線合理,櫥柜儲物能力杠杠的,雙開門冰箱也完美安排進來,真是太棒了。
公衛
公衛位于一樓廚房旁邊的位置,三分離式設計,將盥洗臺移到門外,方便獨立使用。
內部靠窗處做成淋浴房,安裝玻璃滑門與馬桶區隔開,保證空間清爽潔凈,地面加入一塊大理石,方便四周排水,上面的溝槽還起到防滑的作用。
陽 臺
陽臺保留洗衣晾衣的功能,單側配設了洗衣機一體柜,讓日常生活更加方便。
主 臥
主臥位于二樓,整體布局清新怡人,背景做了綠色的護墻板,并用一幅田園風壁畫進行裝飾,寧靜致遠,讓人心醉。
床頭板與床尾的斗柜都是溫潤的柚木色,流露出質樸自然的氣息,起到錦上添花的作用,綠色床品與墻面相呼應,營造出靜謐舒適的休憩氛圍。
次臥
次臥是小包的房間,他喜歡簡單的設計,除了臥室該有的一應物品俱全外,幾乎沒有任何裝飾。
書 房
書房面積比較小,靠墻定制原木書柜,窗前區域則一體做了書桌,一端銜接在書架上,另一端用抽屜柜進行支撐,增加儲物空間,林太太還貼心地選擇百葉簾,遮光性很好,在這里看書也不會炫光。
主衛
二樓衛生間主打純白色調,利索爽潔,原木材質的洗浴柜,古色古香,別有一番韻味。
