「氛圍感親子宅設計」100㎡優雅“穿搭”,逆風翻盤~
來源:愛空間科技(北京)有限公司 日期:2022-11-08 10:47:56
- 詳細介紹
『前言』
從地鐵18號線下車,步行十分鐘就能來到成都海昌極地海洋公園附近的金地天府城,這個樓盤在地理位置上具備得天獨厚的優勢,小區周圍的綠化和空間格局都能給人帶來一種宜居之感,恰好符合小美心中對家的定義。
這是第二套自住房,為了孩子上學方便和改善生活品質,此次裝修小美一家三口提出三個關鍵詞:“精致、高雅、舒適”,基于空間的美感和功能性,首先硬裝上要打好基礎,才能保證居住體驗。
房屋信息:
戶型:三室一廳
風格:輕奢風
常住人口:3人
面積:100㎡
裝修花費:30萬
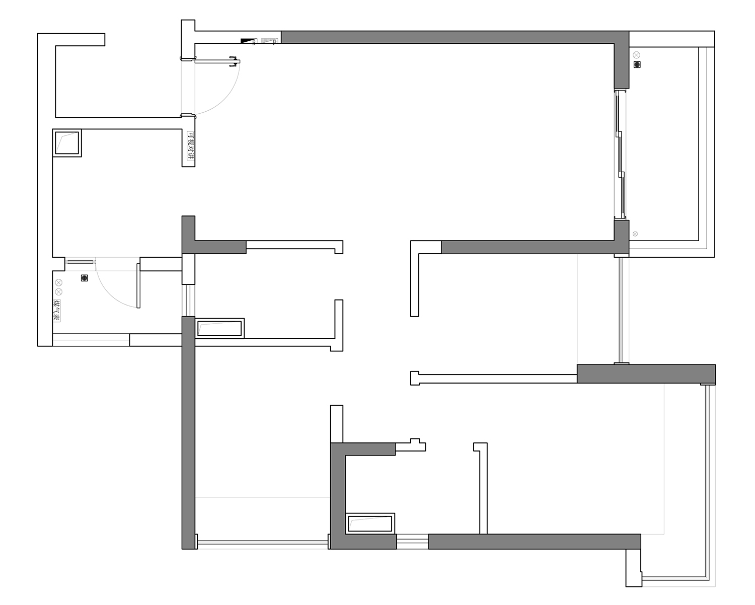
▼原始戶型圖
屋主需求:
①女主人喜歡輕奢風格,鐘愛藍色。
②男主人鐘愛美式咖啡,希望家里多一些休閑的功能可以發揮愛好。
③一家人很注重飲食營養,在家做飯的頻率高,需要寬敞且完善的廚房。
④憧憬主臥有個飄窗和精致的梳妝臺。
⑤兒童房亟需強大的收納,能夠存放衣物和書籍、玩具等。
就戶型圖本身的規劃而言,雖然大體上不存在重大缺陷,但是細節方面也有諸多問題,無法滿足屋主一家對于舒適性、高品質的要求。
▼平面布置圖
結合一家人的生活習慣,我們做出了以下調整:
①以輕奢風為基準,局部融入女主人喜愛的藍色。
②餐廳布置兼具休閑屬性的展示柜,滿足男主人的日常喜好。
③廚房與毗鄰的陽臺打通,兩個空間合并使用面積更寬敞,采光度提升。
④主臥設計飄窗,增加休閑功能。
⑤雙衛設計,多口之家日常使用不擁擠。
⑥公區和臥室定制相應的儲物柜,提升全屋的儲蓄力,保持高度整潔。
客廳
客廳色調素雅,以藍白為主,通過簡潔、明快的線條造型傳遞出了一種寧靜和諧之感。頂部采用全包式石膏板打造,安裝射燈與水晶主燈,照明選擇多樣便捷。
沙發背景墻以藍色護墻板鋪設,加以金線勾勒,打破傳統白墻的寡淡,給客廳帶來一種被包裹的溫柔質感。
沙發上放置不同色系和質感的抱枕,顏色搭配和諧。旁邊擺放邊幾,精巧的設計搬動靈活,上面放上茶杯和書本,讓主人在沙發上一伸手就能夠到。
在硬裝方面更加注重功能性和簡單的裝飾,電視背景墻選用白色大理石紋樣的護墻板打造,沒有過多裝飾,讓空間顯得格外清爽,也給人視覺上的放松。
白紗簾點綴綠植,擺放一張天鵝絨單人沙發秒變休閑一角,各類軟裝堆疊出層次,制成甜而不膩的居家氛圍,看上去更舒服,也更有家的溫馨。
餐廳
在客餐廳過渡區域,墻面采用大理石+乳膠漆拼接,兩種材質的結合與碰撞,讓空間充滿了各種幻想與無限可能。
布置原木質地+金屬色邊的斗柜作為客餐廳的分界線,通過立體的物件簡單劃分空間功能。上方是太陽形狀金屬裝飾,非常華貴大氣。
一張金屬細腳巖板餐桌簡約大氣,搭配清爽的餐椅,美觀實用,又提升格調。精致的碗碟,鮮艷靈動的花枝,球形餐燈下的一日三餐充滿平凡又幸福的人間滋味。
沿墻定制的餐邊柜增加儲物空間,中間掏空做陳列臺,上層深色透明柜門,對白色背景起到了一個破色效果。
廚房
整個廚房是灰白色系,給人一種莊嚴冷靜的感覺。地磚是和客廳一樣的花色,不再需要其他的修飾,已經足夠高級;吊柜+底柜設計增加了廚房收納力,按壓式柜門,方便省力。
洗—切—炒動線流暢舒適,電器設備也整齊有序地歸置在特定區域,功能完善,可活動范圍寬闊自如。
▼通往臥室的長廊
走廊連接著室內各個房間,盡頭掛了一幅日式海浪圖,有一種浮世繪的美感,為房屋增添不一樣的風格色彩。
主臥
結合主人氣質和需求呈現出了白+橙的配色設計,加以同色系窗簾,睡臥空間顯得清爽舒適。
當陽光投射進臥室,紗簾的籠罩自帶一種夢幻感,于此可以一邊慵懶散躺,一邊享受日光浴。
白色皮質床頭與上方的壁柜在視覺上融為一體,頂部兩盞筒燈揮灑下氤氳的光線,為睡眠空間注入無限的溫柔;窗邊設計飄窗,鋪上軟墊,用來看書、發呆、聽歌都很可。
梳妝臺選用咖色和棗紅色相結合的款式,儲物、護膚、梳妝都能在這邊舒適地完成,圓形皺褶的坐凳凸顯著深邃的線條感,精致生活從此刻開始~
主衛
衛生間整體采用深色系,較為冷峻高級。盥洗鏡后暗藏暗燈,有一種光影的美感,智能馬桶可以很好地方便生活,淋浴區用玻璃門隔開,干濕分離,保證安全。
兒童房
兒童房采用白色+淺木色打造,搭配色彩柔和的藍色,共同營造了一處獨屬于孩子的浪漫與溫馨。榻榻米床和收納柜一體式設計,
床體下方帶有儲物格,整個空間的收納功能強大又隱秘。
床頭放置了小主人喜歡的畫本、手賬以及玩偶擺設,平日里這邊也是他的私人娛樂空間,看看書,彈彈吉他,怡然自得。
客臥
客臥是基本閑置的,采用床柜合一的設計,大扇窗面能夠很好地保證室內采光。
公衛
公衛鋪滿白色暗紋瓷磚,有一種藝術風情;圓形盥洗鏡加以金屬勾邊,復古有趣;洗手臺懸空,外觀造型前衛優雅,下方無死角,使用體驗非常棒。
濕區用玻璃隔斷做了干濕分離設計 ;地面做了防滑處理,同時門上設置了扶手,保證了家人的洗浴安全。
