榻榻米兒童書房+步入式衣帽間,73㎡「北歐風」全是寶藏
來源:愛空間科技(北京)有限公司 日期:2022-11-08 13:46:06
- 詳細介紹
『前言』
屋主情況:常住人口為年輕夫妻和8歲女兒、男主人從事機場地勤、女主人為公司財務、十年老房改造
屋主喜好:女主人擅長烹飪、男主人注重休閑放松、女兒特別喜歡讀課外書
居住需求:
1、希望給孩子營造一個安靜不受打擾的學習環境
2、家里多布置一些儲物空間,杜絕雜亂擁擠的感覺
3、兒童房不僅要能夠睡臥,還要有專門的儲物和學習空間
4、喜歡淺色的居家環境,尤其原木材質,比較的清爽溫馨
設計亮點:隱形門、步入式衣帽間、兒童房書柜
房屋信息:
戶型:兩室一廳
風格:北歐風
常住人口:3人
面積:73㎡
裝修花費:18萬
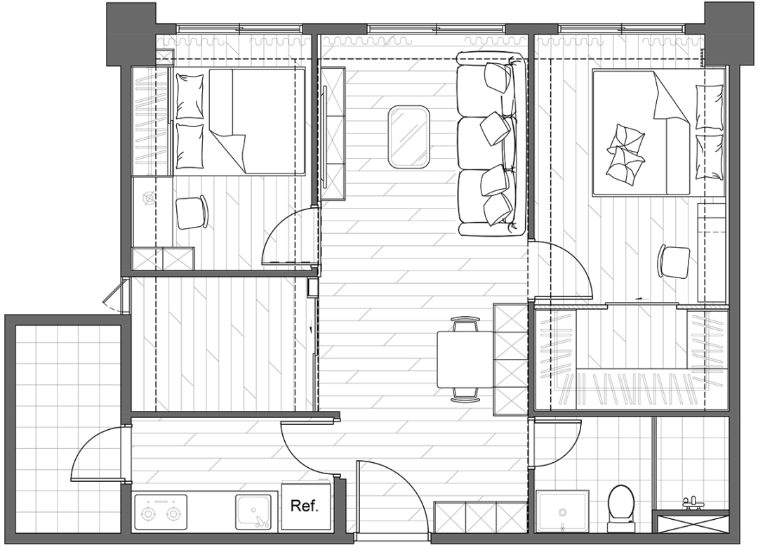
平面布置圖
設計策略
①入戶布置儲物柜,滿足屋主一家進出門的儲物需求。
②客餐廳以開放式設計,加強空間互動性,保證采光度和寬敞度。
③主臥舍棄主衛空間,布置獨立的衣櫥,提升居住品質。
④兒童房布置相應的儲物柜和書桌,增強空間的多重功能。
玄關
進門處利用右側空余空間做了上下兩個壁柜,上層容量寬大可以盡情擺放居家物品,下層柜體懸空擺放使用頻率最高的居家拖鞋等,挑空的臺面放置包包、門卡以及裝飾品。
客廳
客廳以淺色系打底,地面鋪設淺木地板,呈現出輕快愜意的氛圍。電視背景墻以仿大理石木飾面鋪貼,增設氛圍燈局部點亮,塑造了精致溫暖的感覺,夜晚觀影追劇時,燈光恰到好處,更好地呵護一家人的視力健康。
電視墻后是起居室,臥室門特意采用淺木色材質打造隱形效果,凹凸有致的自然肌理十分具有層次感,并且與客廳環境渾然一體,弱化了存在感。
沙發背景墻沒有任何的裝飾,一切以返璞歸真的面貌呈現出家應有的真實與簡單。一字型三人沙發搭配圓形巖板茶幾,提升時尚感的同時也將有限的空間釋放了出來;
茶幾周圍鋪上毛絨地毯,一家人看電視、聊天坐在上面很舒適放松。
餐廳
入戶空間無縫銜接餐廳區域,兩個空間互相連接又各自獨立,餐廳與玄關的儲物可以實現暢通共享。
餐廳家具以混搭的元素體現出獨特美感,巖板餐桌加上混合藍色和橙色的拼接細腳餐椅,跳躍靈動又帶著幾分精致感,平平無奇的每一餐都能變得更有儀式感。
客餐廳開放式設計,讓生活動線暢通無阻,居家環境明亮舒適。
周末居家可以和家人更好地進行互動,日常清潔也能一步到位。
廚房
U型廚房設計可以增加空間使用面積,更方便操作。而且墻上還打造了置物架來擺放各種廚具,增強了廚房的兼容性。
主臥
臥室目之所及皆是溫柔。暖色的墻面,溫潤的木質大床,舒適的絲質床品,還有窗外溫暖的日光,匯聚成了不動聲色的柔美,讓人心安。
沒有設置傳統的床頭柜,只安裝了球形金屬燈和高度適中的插板,墻面的紋理與臥室門十分呼應,彰顯了和諧的整體感。
床頭擺放暖色系太陽元素裝飾畫,營造出陽光溫暖的感覺,讓屋主每一天的起居都充滿寧靜與美好的氣息。
床頭選用梳妝一體柜,體積小巧不占空間,可以滿足儲物、梳妝、閱讀等功能,非常便利。
舍棄主衛空間完成對獨立衣柜的塑造。空間保留部分墻體,用移動玻璃門進行隔斷,既通透又可以起到很好的防塵效果。
U型結構的衣櫥,將空間利用率做到了極致。上方吊柜可存放換季的被褥毛毯和床品,下方分別有掛衣區、抽屜等各類儲物格,所有衣物都能整齊歸置其中。
抽屜最上面有玻璃置物格,存放各類首飾珠寶以及絲巾領帶等等,在氛圍燈的照射下一件件平常的物件宛如藝術品一樣精美。
兒童房
兒童房打造榻榻米床+衣柜一體式設計,用最小的空間實現了休息、置物需求,旁邊還有定制的書柜和桌椅,功能完整又精巧。
藍色床品,純棉親膚質地,柔軟舒適,整個屋內充滿貼心細致的設計,未來十年過渡完全不成問題。
衛生間
衛生間用淺灰色木材鋪設,懸空臺盆減少死角也精致美觀。淋浴區做了通頂的金屬玻璃隔斷,洗浴時隔絕水汽,室內很干爽。
