- 詳細介紹
@昊一和@COCO是一對90后年輕夫妻,分別從事家具設計師和咖啡師的工作,兩人自由隨性、討厭將就。由于熱愛設計,喜歡中古家具,@昊一辭職下海,經營了屬于自己的創意家具工作室。@COCO則堅持著咖啡師的工作,偶爾會到昊一的工作室打下手。對于生活,他們始終保持好奇和專注,從來不會覺得無聊,每天都過得充實而有意思。
父母催生后,夫妻倆購下了這套二手房,為以后的有娃生活提供更好的居住保障。
屋主家基本資料
廣州市白云區/復古風/屋齡6年/電梯樓/4室兩廳兩衛/常住人口2人,父母偶爾過來小住
1.所需功能:
①希望房屋通風好、采光佳,一家人有更多互動空間。
②收納空間要充足,日常動線合理。
2.生活方式:比較喜歡自然簡單的生活理念,周末的時候,能約上三五好友來家中喝茶、閑聊,一起享受生活的美好。
3.設計需求:想要簡約復古的風格,低調卻顯高級。
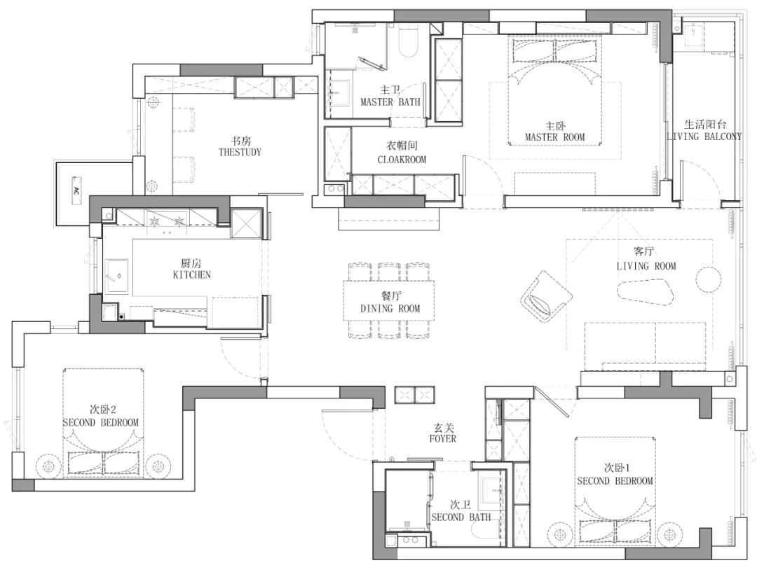
戶型圖
戶型缺陷:
1.戶型方正,中規中矩,但無用的隔斷墻多,整體感覺比較沉悶,活動區域有限。
2.入戶玄關過于狹窄,無法安裝鞋柜。
3.廚房及衛生間面積都太小,沒有足夠的儲物空間。
4.客廳與臥室陽臺連通,但沒有被充分利用起來,造成面積浪費。
改造亮點:
1、打通玄關隔斷墻,擴寬入戶面積,專門定制了鞋柜,方便進出時隨手收納鞋子、放小鑰匙等等;
2、客餐廳一體化設計,將客廳陽臺融入其中,布局靈活,打造出一個開放式的互動區域,讓整體視覺更為開闊;
3、在不同區域打造不一樣的定制柜,緩解家居的儲物壓力;
4、廚房空間外擴,避免狹窄,增加采光。
色彩搭配:
整體選用了微水泥作為主基調,暖灰色提升了空間的溫馨感和包容度,搭配深色實木和暖白布藝家具,氛圍格外寧靜。
客廳
設計亮點:設計師從功能布局和動線的調整切入,同步協調光線、色彩和趣味交互,不僅滿足屋主的獨特生活方式,更進一步建立居住者與空間的連接和信賴感,豐盈精神層面的體驗。整體裝修風格偏復古,微水泥材質背景,軟裝布置以舒適、簡約大氣為主,營造出充滿個性又不失溫馨的家居氛圍。
搭配:作為全家人共享的休閑區域,客廳設計尤為重要。他們摒棄了繁雜的裝飾,純粹溫柔的原木地板+微水泥墻面,搭配奶油色布藝沙發,舒適愜意。
黑胡桃木復古長條電視柜,精簡低調。電視機懸掛在墻體上,電線等都隱藏起來,外觀大氣又安全不顯凌亂。

設計亮點:整面墻的落地窗+白色窗紗,既文藝浪漫又能帶來良好的采光效果。陽光穿透紗簾如俏皮的精靈舞蹈,四時之景來回更迭,溫暖而放松的空間,給予生活如萬頃星河般的廣度,無限而又精彩。

規劃:陽臺包進客廳,擴寬了休閑娛樂的空間,讓生活有了更多的可能性。喜歡音樂的coco偶爾會坐在窗前,彈起心愛的吉他;喜歡看書的昊一則會在陽臺的另一邊看著喜歡的書籍,互不干擾,卻又彼此心系,悠然且自在。
餐廳

動線:采用了客餐廳一體化布局,中間沒有隔斷墻,整體視覺寬敞而通透,動線合理流暢,提高了家人間的互動性,室內空間也更顯明亮大氣。

搭配:餐廳布置十分簡單,長方形的原木餐桌搭配同色系餐椅和長矮凳,上方一盞極簡吊燈,加以花瓶綠植點綴,營造出溫馨自然的用餐環境。

收納:原木餐邊柜為夫妻倆提供了充足的儲藏空間,酒瓶、杯子等可以收納其中,方便拿取。柜子臺面放置咖啡機等各類智能家用小電器,緩解廚房的儲物壓力。
廚房
動線:廚房是半開放式的設計,冰箱、水槽、灶臺形成合理的動線,解決廚房基本功能的同時,也保持了環境的干凈清爽。
主臥
工藝:淡紅色基調床單搭配原木床頭長柜,制造出了滿滿的復古韻味,這慵懶的懷舊度假感讓人感覺無比舒適愜意。
收納:嵌入式到頂衣柜增加儲物,兼具高顏值與實用性,用來放置被子或者行李箱之類的大件物品,即使里面的物品再雜亂,只要關上柜門就立刻顯得整潔了,還能避免衛生死角。

設計亮點:把床靠背設計成柜臺的形式,可以把床頭柜與靠背結合起來,設計成簡易“書柜”的形式,擺上書籍、干花、裝飾品等等,讓臥室充滿藝術氣息。
規劃:主臥安裝獨立衛生間,隨時洗手、洗漱都很方便。懸空浴室柜清新有質感,懸空設計可減少衛生間死角,清潔打理更為便捷。
父母房
父母雖然偶爾過來小住,但是房間裝修不能馬虎,簡約溫馨的布置,素雅潔凈的床品,地面整鋪溫潤質樸的木地板,氛圍舒緩放松,能讓父母獲得良好的睡眠質量。
客房
生活方式:次臥設計也是簡單大方的,夫妻倆經常在周末時約上好友小聚,臨時留宿也是非常方便的。
書房

書房以實用性為主,更是采用大量的原木元素,懸空書桌+隔板置物架書柜,簡約卻不簡單,能夠擺放大量的書籍、飾品等。
衛生間
搭配:衛生間經典的黑白色調凸顯了優雅高級的家居氣質。安裝玻璃淋浴房,實現了干濕分離。六邊形墻磚+花磚地板極具特色。洗手臺是寬大的洗槽口,為洗臉、刷牙留出充足空間,防止水漬外濺。
