前方高能!深圳夫妻打造105㎡“溫柔鄉”,虐哭網紅房
來源:愛空間科技(北京)有限公司 日期:2022-11-08 16:27:11
- 詳細介紹
“如果要說“溫柔鄉”長什么樣子,我覺得我的家就是。”——溫小姐笑著說
進入溫曼小姐的家,腦海里總會想起那清清涼涼的薄荷糖,清新的感覺直達心底。整個屋子的布置如同女主人一般,隨處都散發著恬淡溫柔的氣質。28歲的年紀,結婚兩年,小兩口憑實力在深圳購下這套105㎡的三居室。記者+律師的強強聯合,沒有太多時間精力自裝修,委托給裝修公司是必然。
裝修以溫曼小姐的喜好為主,憧憬已久的清新治愈的薄荷綠、寬敞自由的客餐廳、安靜解壓的書房…都在設計師的手下一一實現。
房屋信息:
面積:105㎡
戶型:三室一廳兩衛
常住人口:2人
風格:北歐
裝修成本:24萬
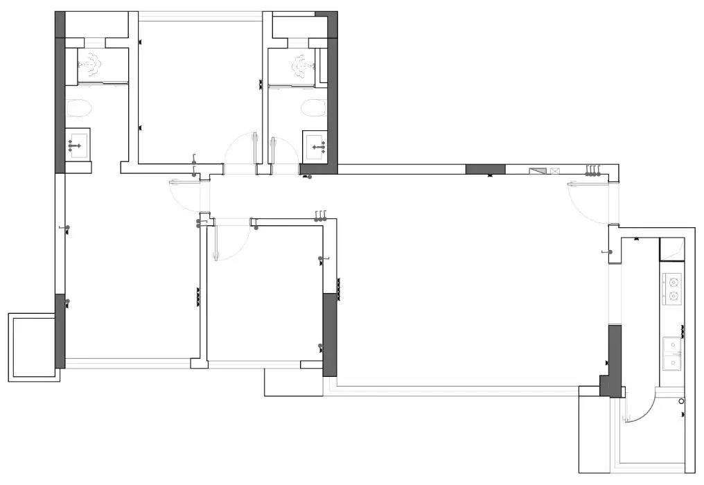
戶型圖
從拿到戶型圖開始,溫曼小姐夫婦就對每一個空間都有所規劃,所以在硬裝上基本沒有大改,設計師著重從滿足空間之內的功能布局入手。
小兩口的裝修需求很明確:
1-客餐廳一體更有生活氣息和溫馨感。
2-兩個臥室裝飾得不能太跳躍,希望相互映襯。
3-無論如何,一個主衛一個客衛是必需的。
4-一個解壓放松、寬敞的書房。玄關
入戶是靠墻定制的柜子,既可以收納,還很好地裝飾了過道。各種各樣精美的擺設,彰顯出屋主不俗的審美和藝術品味,以及對精致、美好生活的追求。
過道墻壁做了上下分色,定制柜與墻色融為一體,儲物柜+鞋柜的設計,同時滿足了玄關儲物和客廳收納的功能。
滿目的清綠中,配上復古造型的臺燈和木質相框,絕美!每天出門看見心情都會很好。
客廳
客廳狹長、采光特別充沛,半落地窗用了雙層簾,可自由調節角度,根據不同時間段控制自然光的引入。
茶幾、地毯和沙發的組合可可愛愛,絨面材質更顯得柔軟和溫馨。暖白的基調下,利用最為原始棕色系營造出復古小資的空間氛圍,不得不令人驚嘆。
液晶電視掛于客廳中心位置,休閑時光窩在沙發里一邊看電視,一邊討論劇情,這樣平凡而幸福的時光,恰恰是工作繁忙的小兩口最為珍視的。
”特別喜歡這個沙發,因為它像面包、像奶油,好甜!”不得不說,溫曼小姐的審美十分前衛,在選定了沙發后,用云朵形狀的小茶幾與之相配,空間彌漫著溫柔甜美的氣息。
半落地窗旁的一角擺上一把舒適的單人椅,一個小巧的小圓茶幾,身旁以蒲葵為伴,閉目養神,又或發發呆,很放松。
餐廚廳
餐廚廳也是溫曼小姐心目中的樣子,在充足的光線下用餐,心情都會變得很好。還可以利用用餐時間看看新聞,追追劇,給平淡生活添加一點樂趣。
四角圓潤餐桌,餐椅長凳與單椅混搭,清新又有活力。

Q:在生活方式中重視的主題是什么?A:顏值與舒適。薄荷綠一直是我心目中的治愈色,清新解壓,為了顯示層次感和暖度,配上純白和棕色,不濃不淡,一回到家就感覺春風拂面。
溫曼小姐的家居好物不再被放在封閉的櫥柜里,而是整齊地擺滿了餐邊柜。綠植和食物水果擺滿了餐桌,這才是真正的人間煙火氣。
主臥
臥室背景墻是略帶復古感的花藝紋飾,下部是黃色乳膠漆,中間橫加了一條黑色極窄腰線,一眼看上去就聯想到婀娜多姿的少女。
將衣帽間安置在床尾,柜子中間留空,可以放電視機。梳妝臺置于床側,一切布置得井井有條。
中世紀櫻桃木宮殿床,床頭柜放置一盞小巧的木質復古臺燈作為氛圍照明。溫曼小姐覺得睡前就需要這樣的燈光醞釀睡意。一盆綠植點綴,讓人倍感清新。
Q:給不愛收拾房間的人一些建議?
A:要學會斷、舍、離。不堆積物品,只買自己喜歡的,不買用不到的。收納空間不需太雜,不然不容易翻找。根據使用頻率整齊地規劃擺放好家居用品。
主衛
主衛采用分色處理,空間如色塊畫一般,突出比較強烈的層次感,也讓現代人都有的強迫特質得到滿足。浴室柜和馬桶均安裝成懸掛式,干凈又方便清潔。
次臥
次臥在規劃上,僅考慮滿足基本睡眠和日常功能,配色和裝飾如小兩口所愿,與主臥異曲同工。白凈的墻面搭配簡潔的裝飾畫,將利落的現代感與質樸的自然氣息巧妙結合。
床頭的壁燈和吊燈方便提供氛圍照明的便利性又提升了美感,金黃色的窗簾和掛畫,都為空間注入了靈魂。
自然輕巧的配色,結合點線面重疊交錯,營造出復古優雅的空間氛圍。白色通頂衣柜配有金色把手,精致又大氣,也提升了次臥的收納能力。
書房
書房選擇方便移動的成品家具來滿足功能。地毯的柔軟與冰冷的鐵藝觸碰,滿足視覺享受的同時,也給到身體多種不同的體驗。
各色的小裝飾凝練著藝術性的表達,給曠達空間帶來更多的隨性自由和舒適度。不夸張不浮躁也不堆砌,卻帶有引人入勝的魔力。
Q:在家里最喜歡的地方和休閑方式是什么?
A:在書房里安靜閱讀和思考工作上的事情。書房布置得不沉悶和厚重,滿足基本使用功能即可。我們更注重的是在這樣一個舒適度滿分的空間里徹底放松下來,有助于工作中快速“回血”。
次衛
作為公衛,呈現的是干凈利落之感,衛浴用品都收納在了浴室柜之中,整潔又好打理。整體空間雖小,但干濕分離很到位。
