天津78㎡變身「家庭書舍」,這屆爸媽太有“心機”了
來源:愛空間科技(北京)有限公司 日期:2022-11-09 14:22:31
- 詳細介紹
『前言』
家住7層,從大大的落地窗照射進來的光線令人心情舒爽。
這套房子陪伴了我們從結婚到有娃,現在已有第6個年頭,寶貝兒子今年3歲半,特別調皮,為了從小讓他養成一些良好習慣,我和先生決定從環境改造開始,把舊房翻新,打造親子閱讀區、獨立兒童房,互動空間多更能營造一家人的快樂氛圍,本想半包,希望把預算更多運用在軟裝上面,但依然不懂空間規劃,索性找設計師進行全屋規劃,具體如下:
房屋信息:
戶型:兩室兩廳
風格:北歐
常住人口:3人
面積:78㎡
裝修花費:18萬
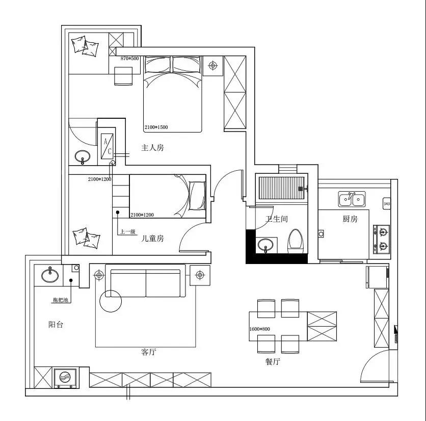
平面布置圖
戶型優化:
基于原本的兩室兩廳一廚一衛的布局,變成了一個擁有大閱讀區的精致居所。本案的設計改造基于三點:
①去掉原客廳的傳統功能,將其改為閱讀公區,增設滿墻書柜提升收納力。
②在廚房做了玻璃隔斷門,烹飪空間與公共空間很好地分離開來,提升空間獨立性和居住舒適性。
③廚房內部重新規劃布局,擴充收納空間,同時安裝智能設備。
客廳
大部分家庭的客廳會以電視為主,但是設計師通過硬裝和軟裝搭配、功能區輕重處理的巧妙手法將客廳的焦點側重為一整面的開放式書柜,把屋主的喜好融入設計中,讓整個客廳的功能性更加豐富起來。
軟裝的搭配上,客廳布置深煙灰色懶人沙發,增加了幾個色彩跳躍的抱枕提升美感;
民族風紋理地毯,可以滿足屋主一家赤腳閱讀和就地而坐的需求;窗簾選擇了透光且防曬的白紗,保證室內光照度和私密度。
沙發背景墻上的裝飾畫整體塑造出更為豐盈的空間美感,茶幾上精心布置的插花,讓心情也更為愉悅。
客廳與玄關餐廳開放式的布局,很好地解決了小戶型的局促感,清潔衛生也少了許多死角,感受到更敞亮暢通。兩個區域僅以家具和地板作為視覺劃分,過渡自然不顯刻意。
客廳頂部沒有布置射燈和筒燈,只安裝了集中照明的主燈,流露出簡約感。
旁邊的通頂書柜布滿了客廳的墻面,均勻對稱的收納格在視覺上呈現出整潔的效果,容量相當可觀,找起來方便快捷,整個家充滿了書香氣息。
餐廳
將北歐風最注重的原木韻味注入餐廳區域,無過多的裝飾,便能打造出一個線條設計流暢、質感細密的用餐區。
廚房
為了減輕視覺上的厚重感,在整體櫥柜的配色上選用偏輕暖色,L型的廚房操作動線也很流暢,吊柜和櫥柜的雙重組合也為日常烹飪提供了充足的收納空間。
主臥
主臥最引人注目的是藍色的背景墻,恰到好處的明媚和沉靜感讓空間顯得溫馨靜謐。
大床和墻面以白色為主,自然通透,整個室內充滿了陽光清新的柔和氛圍。窗邊還有一把沙發凳,可以在這邊看書、賞景。
造型別致的床邊茶幾擺放在此,可以方便主人隨時取閱書籍和拿放手機等等。隨心布置上畫框和各類裝飾,也能多幾分浪漫。
兒童房
兒童房在色彩上依然與主臥有異曲同工之妙,并且加入了一些卡通元素,打造出了一個自然且童真的房間。
高低床的階梯以寬厚的抽屜組成,既不硌腳,也能收納玩具和各類物件,有助于孩子養成良好的收納習慣。
衛生間
衛生間地面鋪設防滑耐臟的亞光灰磚,安全性很高,搭配白色的墻磚,放大了視覺空間,絲毫不顯壓抑。
