- 詳細介紹
30歲,擁有了《何以笙簫默》中“不將就”的愛情,也執著于“不將就”的生活,婚房裝修,我們堅持破除常規,隨心而立。
婚房在婚禮前一個月完工,搬入新家成為了我們結婚一個超有儀式感的環節。這個二人世界的家太美了,甚至舍不得放太多雜物,想盡量保留它這最初的美好 ~我們把業余時間大多留給了宅家,吃龍蝦喝啤酒磕零食,偶爾下去散散步,美好人生~
屋主介紹
男女主都是30歲,女主是一位人民警察,工作兢兢業業一絲不茍,但內心卻是一個很潮流的人,生活和工作反差很大,喜歡看展,音樂,注重生活品質。男主是一位人民教師,內心細膩,對夫人也是寵愛有加,所以新房裝修都按照女主的意思,選擇ins風格。
這套房是他們的婚房,目前是夫妻二人住,父母偶爾來小住,未來有要孩子打算。
屋主家基本資料
廣州海珠區/ins風/電梯樓/室內125㎡/三室一廳/2人
所需功能:需要大量的收納空間;出門可以照鏡子的玄關;可容納兩個人一起做飯的廚房;
生活方式:日常宅家,分享喜歡,投遞日常 ,捕捉生活的溫柔;
設計需求:溫柔又治愈的ins風格;這套住宅作為婚房使用,需要規劃兒童房、父母房及主臥;衛浴做干濕分離。
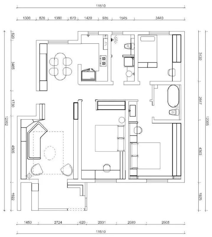
戶型圖
改造亮點:
1、拆除餐廳隔墻,讓客餐廳實現南北通透;
2、全屋奶油色打底,再加上淺色系的硬裝,給人舒適治愈的氛圍感。
3、去掉過道收納區,納入父母房,擴大面積。
4、盥洗柜移到衛生間門外單獨使用,并擺放洗衣烘干機,生活動線更便捷。
色彩搭配
整體配色靈動活潑,以暖白色為基調干凈明亮,在家具的色彩選擇上豐富不失協調,姜黃、黑色、純白色座椅弱化了空間的沉悶,再搭配小面積木色,更加溫馨。
客廳
設計亮點:客餐廳全景圖。我們堅持“輕裝修,重裝飾”理念,空間布局基本未作改動,吊頂也作了留白處理。大面積的米白色,軟裝上插入陳皮黃、淺粉色,增加細節,沉穩冷艷之中有熱情的元素。
搭配:落地燈和無主燈、地毯、綠植點綴形成呼應,擴大了空間關系,突顯客廳的精致。
入戶處用輕紗簾遮起來,就成了一個落地窗,柔和充足的光線在屋內游走、穿插,將空間無限拉長,這樣的比例就很完美。
收納:出于對收納的需求,在沙發墻處定制了滿墻的收納柜一直連接到原入戶玄關處。特意選擇了無拉手的淺色系極簡柜門,中間嵌入深色開放格子做點綴,有開有合。
規劃:由于柜子占據了部分空間,如果放傳統的正規沙發難免會覺得不實用又擁擠,所以設計師特意給我搭配了可愛到爆的網紅異形沙發和單人椅,輕巧別致、方便移動。
電視墻整體留白,下方安裝懸空式層板,輕盈實用。一盞吊線燈的淺淺點綴在角落,賦予無限想象。
餐廳
規劃:餐廳與廚房相隔較近,方便就餐。從客廳角度看向餐廳,通鋪的灰色柔光地磚,統一的奶油色打底,我們能隨心所欲,自由熱情地生活。
收納:側面定制到頂餐邊柜,上邊的格子柜用來放酒,側面用來放杯子、茶葉,順帶將烤箱嵌了進去,也是一個小西廚吧臺,將生活的瑣碎繁雜統統包容,只留一片開闊讓身心明朗。
搭配:餐桌椅的選擇與客廳柔美曲線的家具有所區別,線條感強烈而且多了幾分“規矩”,藤編元素的餐椅有幾分侘寂之美。兩盞銀色的金屬吊燈與餐桌椅搭配出了些許的中古風味道。
廚房
生活方式:自從住進了新家,我們就很少出去吃飯了。所有的設計都按照我們的身高和習慣來設計,多人操作也不“打架”,使用起來得心應手就更不愿意出門了,即使約朋友也盡量邀請來家中聚餐。
動線:典型的U型廚房,取洗切炒動線分明。設計師以進深為標準,打造上下儲物柜,冰箱靠門邊放置,上方也定制了吊柜收納不常用的鍋具。油煙機包裹設計,消除視覺上的突兀感,美觀大方。
過道
走廊是家里采光最差的地方了,所以依然延續了淺色系,而且為了避免壓抑也沒有做任何裝飾,只是在走廊盡頭擺放一盤造型簡單的綠植,既是端景也讓大面積的淺色中有了落點。
主臥
搭配:隨性而舒心的格調美屋,讓人倍感放松。臥房戶型方正,米色墻面為底色,又以深木色床頭板為連接,延續了客廳的風格,明暗有序、深淺有度。
收納:如愿以償在臥室有了一個大大的衣柜,設計師利用床尾空間定制整排衣柜,收納量堪比一個衣帽間。
床頭柜、梳妝臺與床頭靠背采用一體式定制,簡約又耐看,兩盞黑色的吊線燈從上而下垂落,對稱式床邊設計,看起來更加優雅和吸引人。
主衛
規劃:主衛內放了浴缸,所以把洗漱區外移至主臥過道區;入墻式水龍頭、懸掛式臺盆更顯這個小空間的質感。
設計亮點:頂噴花灑嵌入到吊頂中、再加上個性的浴缸龍頭,這個不大的衛生間滿是高級感。
生活方式:泡澡的幸福感肯定是翻倍的,可以全身舒服地展開,整個人浸泡在熱水中。
兒童房
規劃:為未來寶寶留出的房間,把該有的也都預備齊全了。房間不大,空間也很深,為了提高利用率,保證一定的采光,儲物柜和書桌一體式定制緊貼墻面,滿足功能需求。
次臥
拆改:過道收納區并入父母房后,能放下一張1.8m*2m的大床,左右兩側還留有充足的過道區域。
搭配:相對主臥來說,父母房的色彩搭配顯得更加素雅一些。墻面以較淺的、溫柔的咖灰色為主,既溫潤質樸,又能與床頭裝飾形成層次對比,不會單調,當人身處其中,只覺放松與安靜。
次衛
動線:公衛干區預留的空間比較多,在洗漱盆旁增加了家政柜,嵌入了洗衣機和烘干機,平常洗完澡后,換下的衣服可以直接清潔。
衛浴間一定程度壓縮,統一的色點與射燈拉伸空間縱深,利用百葉引入柔和的光源,勾勒空間的細部之美。
