武漢98㎡「奧利奧風」,創意腦洞治愈細節控!
來源:愛空間科技(北京)有限公司 日期:2022-11-15 16:25:27
- 詳細介紹
說在前面
今天給大家介紹的是武漢客戶周先生和周太太的98㎡婚房,相識9年,相戀7年,至今步入婚姻殿堂,讓他們對這個專屬二人的小家,充滿了無限期許。對于家裝的想法,小夫妻倒是難得的統一,都喜歡比較清新簡約的格調,就像他們的愛情,純粹而美好。
基于目前兩人居的狀態,屋主對原始的緊湊小三室不甚滿意,隔墻比較多,造成空間的浪費,于是設計師根據他們的需求,巧妙做了合理的拆改重組,小三居變大兩室,還設計了一個靈活的多功能房,讓家居線條更加流暢和諧,整體采用經典的黑+白+灰為主基調,再輔以木色進行裝飾,打造出一個清麗簡美的私人暖宅,讓人心之所向,而一往情深。
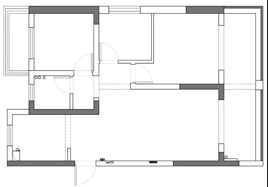
原始戶型圖
戶型分析:原始戶型比較規整,典型的三室兩廳布局,但每個功能區都不算大,通透性也欠佳,好在有陽臺的加持,無形中擴大了可利用空間。
平面布局圖
家里平時只有小夫妻二人居住,兩室已然足夠,他們想要的是更多公共活動空間,于是對戶型進行了調整:
1、拆除了原始小書房的隔墻,打造出一個全新的客廳空間,與餐廳開放相連;
2、封閉陽臺納入主臥設計,擴大了使用面積,同時把入口處的隔墻右移,給客廳騰出了一部分空間;
3、 原客廳區域做成多功能室,移除了陽臺的玻璃門隔斷,增強了內室通透性,與客餐廳形成L型開放公區,書房也搬到這里,滿足屋主的使用需求;
4、次臥也把陽臺內包進來,做成U型落地窗,擴大了功能區面積。
房屋信息:
面積:98㎡
戶型:兩室兩廳兩衛
常住人口:2人
風格:現代簡約風
裝修成本:19萬
玄 關
玄關的布設非常經典,暖光燈與黑色玄關柜結合,給人大氣溫婉的視覺感受,中間做了端景壁龕設計,簡單放上兩個工藝品,韻味十足,同時方便屋主隨時擺放鑰匙等小物件,上下封閉的柜體則用來儲物收納,很實用。
客 廳
這里原本是個雞肋的小書房,設計師重新進行了空間布局,將隔墻拆除,做成公共會客廳,整體動線更加流暢協調,白色紗簾質感輕盈,不經意間帶入幾分“仙氣”,地面鋪設了黑白色地毯,和沙發背景相互呼應,非常簡約有質感。
灰色布藝沙發靠墻擺放,不論色調還是材質,都讓人很舒服,搭配角落里的暖光落地燈,充滿溫情。
客廳中央配設一張輕巧精致的茶幾,可根據需要移動位置,上置不規則造型藝術擺件,多了幾分自由隨性的感覺。
摒棄了傳統的布設風格,不設電視,放置落地支架展示屋主的畫作,方便靈活調整角度,成為客廳中一道可變的風景線。
臥室墻面做了拼色設計,黑色部分是固定的,白色部分則安裝一扇隱形門,作為進入主臥的門洞,合上時便作為客廳背景墻,構思相當巧妙。
餐 廳
地面通鋪木紋磚,塑造出強烈的整體感,客餐廳之間沒有隔擋物,通透一體的布局,實現了多面采光,讓空間顯得開闊敞亮。
定制了整墻白色邊柜,擁有超強的儲物能力,完美收納各種家居雜物,下部輔以木色裝飾帶進行點綴,美觀又大方,還一體做了水吧臺,打破刻板沉悶的氛圍,同時滿足更多功能。
餐廳中部擺放一張大理石圓面餐桌,確保了流暢的空間動線,吊燈和餐椅色彩呼應,與周邊形成黑白經典搭配。
多 功 能 房
原本的客廳區域做成多功能房,將整個客餐廳延伸開來,視野顯得很開闊,陽臺沒有納入室內設計,采用白色紗簾隔開,既不影響采光,又保證了內室隱私。
轉角處做成開放式辦公區,也可做書房使用,靠墻依勢定制一張木質書桌,內置鋼架加固,采用一面大小適宜的黑板墻做背景,屋主可以隨手寫畫記錄美好的小日常,方便又實用。
陽 臺
陽臺一側打造成洗手區,采用水泥漆填充墻面和頂部,簡約又自然,搭配白色豎紋的吊柜和盥洗柜,盡顯素雅大方的氣質。
廚 房
廚房采用灰色地磚搭配U型白色櫥柜和臺面,顯得很高級,石膏板吊頂簡潔干凈,營造出輕松舒適的烹飪環境。
主 臥
主臥延續公共區域清新簡約的格調,做了L型玻璃窗+白色百葉簾,以增大采光面,床尾打滿整排白色頂天立地衣柜,以滿足屋主對各類衣物的收納需求,減少清潔死角。
床頭背景墻留白處理,與黑色床頭搭配出深邃的質感,靠窗擺放一株北歐風的龜背葉,帶來些許生機,頂面做成格柵設計,弱化了突出的橫梁,看起來更加柔和自然。
同步配套了床頭柜,采用黑+橙紅的漆木拼接而成,豐富了空間層次,底端做成抽屜式,別致美觀。
次臥
次臥和主臥一樣,把陽臺內包處理,做成U型落地窗+百葉簾,再搭配一盆綠植,充滿清新舒適的氣韻。
床頭背景墻采用灰色水泥漆填充,陽臺處增加粉色體塊進行裝飾,搭配一張淺色的1.8m雙人床,營造出舒適靜謐的休憩氛圍。
靠窗一側配設了精致的白色小圓幾,厚重的底座與輕薄的桌面形成對比,以粉色體塊為背景,頗有時尚靚麗小清新之感。
床體右側定制一個原木壁掛梳妝臺,小角落流露出文藝柔美的氣息。
衛 生 間
衛生間將洗漱臺移到過道上,實現干濕分區,提高了使用效率,白色盥洗柜和鏡柜,則起到補充收納的作用。
