- 詳細介紹
家,應該是一個讓日常緩慢下來的所在,以退休后生活為宗旨的落腳處更該如此。
屋主介紹
男主人是大學教授,58歲,即將退休,“書蟲”一枚,不放過任何時間。妻子同歲,已開始享受退休后的悠閑生活,喜歡烹飪、養花。
這套房子的是業主兒子給兩位老人買的養老房,房子的面積120平方,位于廣州白云的郊區,主要考慮到周圍的自然環境比較好,適合老人居住。
屋主家基本資料
廣州市白云區/屋齡6年/電梯樓/4室兩廳兩衛/常住人口2人,兒子偶爾過來小住
1.所需功能:
①希望房屋通風好、采光佳,白天不需要開燈。
②要有更多收納空間,布局上注重風水。
2.生活方式:比較喜歡自然簡單的生活理念,希望每一位家人都有自己的私人空間,可以享受獨立的精神世界。
3.設計需求:自然是北歐風,希望家里有清爽舒適的色澤,沒有過多浮夸的修飾,每一處都是主人家居品味最直接的表達,體現恰到好處的精致素雅。
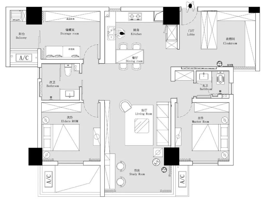
戶型圖
戶型缺陷:
1.戶型方正,中規中矩,但隔斷墻太多,室內采光受到影響。
2.沒有玄關鞋柜,成堆的鞋無法安放,導致入戶過于擁擠。
3.廚房面積局促,沒有足夠的地方放置廚電。
4.客廳陽臺沒有被充分利用起來,造成面積浪費。
5.夫妻倆的衣物無法收納,缺少衣帽間。
6.衛生間太小,且沒有進行干濕分離。
改造亮點:
1.入戶設置收納鞋柜,保持玄關區域干凈整潔,給人良好的家居第一印象。
2.廚房開放式設計,操作臺拼接餐桌,大家電嵌入式擺放在櫥柜上,彌補廚房功能的同時優化餐廚之間的動線。
3.拆除客廳與陽臺之間的墻體,將陽臺包進客廳,縱深延長,使用面積更大。
4.客餐廚LDK一體式布局,改善動線,提升兩位老人日常生活的效率。
色彩搭配:
整體配色較為純凈,采用乳白色和淺灰色奠定基調,櫻桃木色增添生活氣息,再用亮紅色點亮空間,綠植則使得整體更加靈動活潑。
玄關空間
收納:玄關打造嵌入式定制柜體,充分利用墻內的空間,增加儲物。把換鞋凳與玄關柜組合在一起,實用性超強,在外觀上也非常的整體、舒適。平時進出門可以坐著換鞋,更加方便、安全。
客廳空間

搭配:全屋完工過后的裝飾,以簡潔的白色為主基調,瓷磚地板和原木家具相互呼應,灰白色的布藝沙發搭配草編坐墩矮凳,大面積的留白方便業主日常的支配和活動。
設計:無主燈設計讓空間更加的輕松和舒適,收納式原木背景墻,打破傳統電視柜的做法,投影代替電視,打造出一個層次感極強的家居氛圍。雖然只是簡單的修飾,卻給人一場視覺上和心靈上的享受。
豆腐塊懶人沙發是低矮設計,從西式外表中含藏東方禪意,功能上介于沙發與臥榻之間,與旁邊的原木邊幾形成良好搭配,呈現優美典雅、知性與適度的奢華感。
改造:陽臺包進客廳,擴大了公共區域的面積,讓家居環境更加寬敞通透。改造成陽臺書房,可充分利用陽臺空間,實現功能最大化。
亮點:落地窗+白色窗紗,應該可以算是北歐風裝修的標配了!既文藝浪漫,又是改善室內光線的一大利器。
生活方式:男主人喜歡安靜的讀書,偶爾會改變書桌位置,可以搬到窗臺前,讀書累了就抬頭欣賞遠處美景,享受內心的安寧,多了一份慵懶與愜意。
極簡的原木書桌,可滿足夫妻兩人一起讀書學習。上方墻上打造隔板置物架,用于收納書籍、飾品等。
餐廳空間
布局:采用了現在流行的LDK布局,廚房與餐廳、客廳全部打通,開放式的設計,寬敞而通透,動線合理流暢,提高了家人間的互動性,整體空間也更顯明亮大氣。
原木質的餐桌椅布置,清新且自然,給人一種回歸大自然的生活體驗。它展現出一種樸素、自然的原始之美,代表著獨特的北歐風格。
餐桌上方一盞個性吊燈投射出柔和燈光,柔和純粹,營造出溫馨幸福的用餐氛圍,讓食物也變得更加美味了。
廚房空間
布局:女主人喜歡自己動手烹飪美食,L型布局更能合理分配洗、切、炒的三片工作區域,讓她在廚房操作時更加輕松自如。
收納:櫥柜+吊柜的組合滿足烹飪用具分離收納的需求,鍋碗瓢盆都能很好地歸置起來,保持廚房的干凈整潔,這樣烹飪時的心情也會更加美好愉悅。
主臥空間

主臥的布置簡潔高級,雖說沒有太多的修飾,但卻擁有著天然的質感,高級且不失溫馨。寬大的窗戶帶來良好的采光及通風,還有素雅潔凈的床品。
當陽光透過窗戶照進房子,一切都顯得格外美好,如果擁有一個這樣的家,我想每天都會在幸福中醒來吧。
次臥空間

次臥同樣延續了極簡的裝修風格,采用低調柔和的配色,減少繁雜裝飾,打造更加舒適簡潔的睡眠環境。
衛生間
衛生間安裝玻璃淋浴房,實現了干濕分離。淋浴區打造壁龕收納格,可放置沐浴露、毛巾等洗浴用品,簡單大方。
懸空洗手臺設計不會因為出現發霉的問題,而且可以減少衛生死角,方便清潔打理。
