- 詳細介紹
以前從來沒有想過,能實現和閨蜜一起養老,當時說了一句玩笑話:“到了60歲,我們應該住在一起”。這個房子雖然只有60㎡,卻能住出120㎡的功效。以祖母綠為主要素勾勒出時尚簡凈調性,再搭配北歐綠植,兩人兩貓,踏實愉悅。
屋主介紹
@琪琪和@Elaine互為閨蜜,今年剛三十而立,下班之后又是另一個開始,卸下上班族身份,兩人各自以花藝師和教師視角,記錄著養貓、烹飪、培育綠植的點滴,步步實踐了對生活的講究與重視,而那認真看待一景一物的目光,也如實投放在家的輪廓里。
屋主家基本資料
廣州市天河區/屋齡10年/電梯樓/室內60㎡/2室一廳/2人2貓
①所需功能:保持房屋通透、更多收納空間,布局上注重風水
②生活方式:出于對慢節奏的向往,居家休閑功能盡量豐富一些。
③設計需求:自然是復古風,希望在家具以及軟裝的選擇上能突出這一主題;
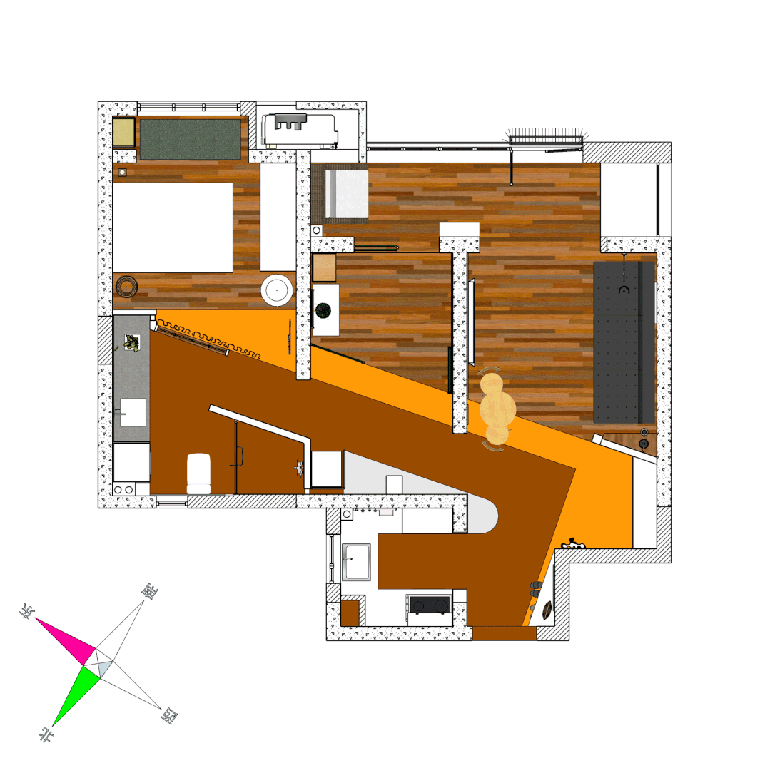
戶型圖
戶型缺陷:
1、方正的普通小兩居,大部分都是承重墻,格局中規中矩。對追求新穎獨特的兩仙女來說,太平凡了些。
2、過道很窄,顯得擁擠。
3、衛生間空間局促,實現干濕分離有點難。
改造重點:設計師找到了可以打掉的墻體(臥室靠近過道左右兩端的部分墻壁),拆掉墻后,原始客廳的承重墻端頭連成一條直線,再延長到臥室,整個格局立刻打破了原來的中規中矩。
設計亮點:
1、戶型改造后形成的斜形過道,加長了路徑與視覺面積,整個空間看上去開闊又別致。
2、衛生間向主臥方向拓展,靠墻設計一字型洗手臺并將洗衣烘干機嵌入,加上鏡面效果顯大顯亮,洗漱也很自由。
色彩搭配
采用大面積祖母綠作為底色,搭配木制,復古氛圍控制的恰到好處,再點綴以小面積橙色打破沉悶。
玄關空間
收納:玄關沒有大型的柜體,用掛墻鞋柜滿足基本需求。空出的下部空間可以擺放當天換穿的鞋子。
客廳空間
搭配:綠色墻面一直延伸到客廳的電視墻,與木材質碰撞,整體的復古深色調沉淀了外界的燥熱和喧囂。走廊用白色地磚,過渡復古綠地面與木地板,銜接得相當完美,同時起到了點亮空間的作用。
亮點:客廳與走廊之間的吊燈是閨蜜花了一個月時間從網上淘的,成了入戶視角的點睛所在,打開燈氛圍感棒極了。
暗紅色的絲絨沙發與復古綠和原木是真的絕配!讓小家越發溫暖、溫柔。客廳沒有放茶幾,為兩只小貓咪留足了奔跑玩耍的空間。
沙發旁邊的木質斗柜里裝滿了我倆這些年旅游買回來的小物件、照片集。閑時翻閱出來一起追溯共同成長的時光。
廚房空間
配色:進門左側就是廚房,承重墻墻體無法打開,于是用顏色表達空間情緒。從這里開始就將墻壁刷成我們事先定下的祖母綠漆,一直延伸到地面乃至客廳,復古的調調有了。
工藝:U型的廚柜操作臺面積足夠,日常一起做飯。吊柜半開放式設計,為微波爐、烤箱等廚電留出專門收納的位置,與我倆的身高契合,操作很方便。
走廊
動線:斜線過道兩端做了通高的鏡墻,通過鏡面讓視覺無限延伸,之前狹窄的過道徹底改頭換面。
兩個女生的鞋子,一個玄關柜肯定收納不了,所以鏡子背后是大大的鞋柜,旁邊可以增加掛衣服的掛鉤。
曲徑通幽處的既視感。
收納:走廊中部是與廚房共用的墻體,定制了柜體后,不但能多收納不少物品,還擁有了西廚的功能,平日里在這兒煮個咖啡、做個簡餐不過是輕而易舉的事。
臥室空間
臥室挨著衛生間,使用了玻璃推拉門和白色軟簾作為隔斷,開合自如,能保持衛生間的自在和采光。
拉開簾子別有洞天—家里的第二個迷你花園,臥室朝南,連著一個靠窗區域,放上了木架子和隔板,精心打扮一番,放些時令花朵,一扇窗就變成了一座花園。
藍色基調碎花壁紙搭配墨綠色墻漆制造出了滿滿的復古韻味,這慵懶的懷舊度假感和舒適感誰看了不著迷~
工作間+貓房空間
把原來的餐廳區域隔為閨蜜的工作區和貓房。與客廳一樣鋪設木地板,還做了同色的木質吊頂,具有一種包裹的安全感。
生活方式:工作區頂部安裝有射燈,加上臺燈輔助照明。一張書桌,一把舒適的座椅,在這里工作,能感受到恰到好處的靜謐,抬頭就是滿目的清新。
貓房兩側都安裝折疊格網門,不在家的時候防止貓咪走丟。如今還成了兩只貓咪最大的貓爬架。
色彩、材質與其他空間高度統一,未來若是想要改成次臥,也方便。
衛生間空間
亮點:走廊盡頭另一側是洗衣、洗漱區域,是衛生間功能的衍生。洗完澡就能順手把衣服丟進洗衣機里,動線完美。
接近兩米的超大洗手臺,筑起日常的小美好:一起敷面膜、一起邊保養邊談笑風生~
繼續往里走是衛生間。斜走廊的延伸無意中擴大了衛生間的面積,干濕分離也實現了,利用淋浴區的墻體轉角位置,做了一豎條玻璃磚,可以讓衛生間的自然光透到外面去,處處都是設計的小心機。
陽臺空間
“我們把花店里自留的盆栽搬到了小屋的陽臺上,順帶把餐桌也移到了這里。質樸木餐桌和兩把中古餐椅在茂盛的花草掩映下,成了一個精致的花園餐廳。”琪琪表示。
生活方式:不光是吃飯,喝茶和看書也在這里。天氣晴朗的時候閨蜜會把這當做辦公地,累了就看著窗外發發呆,或是陪著貓貓們玩一會,總能收獲平靜且愉悅的心情。
收納:餐桌右側是利用原空調主機的位置做的儲藏間,將主機置于上方,下面空出的部分可以當雜物間,收納花架,梯子和閑置的花盆之類的物品。
儲藏間還特意裝了長虹玻璃推拉門,一是增添這個空間的精致感,二是在不擋光的同時,可以遮住各種雜物。
另一側是一組白色家政柜,嵌入洗手臺,貓咪物品在這里清洗。左側豎柜內,是專門放衣架的地方。
規劃:陽臺頂部預留了內嵌的升降晾衣架,里面加了燈光,作為照明輔助。由于后來添置了烘干機,晾衣架就基本用不上了,如今成了植物們的懸掛之處,
