家有活寶二人組,140㎡四居改成雙兒童房,快樂翻倍!
來源:愛空間科技(北京)有限公司 日期:2022-11-18 16:23:29
- 詳細介紹
說在前面
今天分享的這套案例,是客戶梁先生家140㎡北歐風四居室,一家六口,三代同堂,是一個和諧美滿的家。房子不是端頭房,不屬于前后通透的板式戶型,但好在布局方正,客餐廳一體,采光面很大,不用大拆大改。業主想要公共區域足夠寬敞,私人空間要具有特色,尤其是兩個孩子的兒童房,并且一家人的動線不要過于沖突。
在原始結構的基礎上,設計師根據屋主一家的使用需求,同時考慮到兩個孩子的成長,既要有彼此獨立的空間,也要有共同的娛樂和學習區域,巧妙做了硬軟裝搭配。讓每位家人都有契合自己年齡段及喜好的布置,整體又保持協調統一的格調,兩間兒童房的安排也是恰到好處。
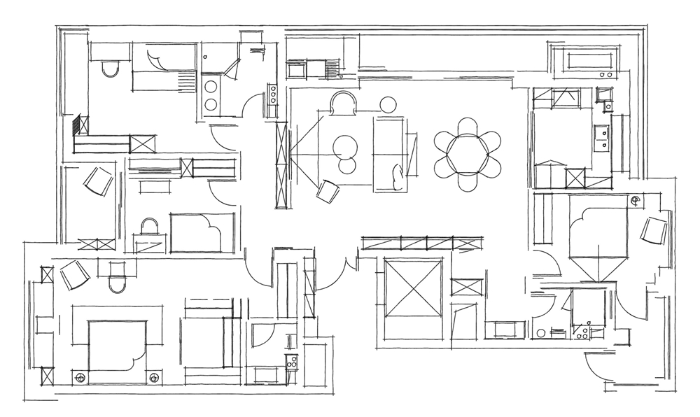
平面布局圖
戶型分析:房子戶型方正,沒有浪費的空間,四室三衛保證了一家六口的使用需求,最有特點的是客餐一體設計,連載整面百葉長廊,采光非常好,同時提高了家居整體感,互動性也更強。
房屋信息:
面積:140㎡
戶型:四室兩廳三衛
常住人口:6人,兒子8歲,女兒6歲
風格:北歐風
裝修成本:27萬
客 廳
當下比較流行的客餐廳一體設計,給人暢通無阻的即視感,原木邊柜將兩個功能區完美銜接,增加了儲物且十分有一體性,一眼可見整面墻的“蒂芙尼藍”,優雅活潑的布置,讓人移不開視線。
客廳以高級簡約的搭配,營造出浪漫舒適的氛圍,“每天下班回家,推門而入就可以卸下一天的疲倦,擁抱這個溫馨美滿的家,人生足矣”,梁先生開心地說道。
淺綠色的電視背景墻清新自然,沒有過多裝飾,彰顯出素雅高潔的氣質,搭配灰色皮質沙發,帶入幾分輕奢高級感,大片陽光輕輕灑入,不驚不擾,連空氣也是自由的。
側墻處安裝了純白的暖氣片,上方懸掛一幅時尚女郎壁畫,大膽有創意,旁邊搭配黑鋼落地臺燈,質感十足,墻角加入一株綠植進行裝飾,原本單調的空間突然就豐盈了起來。
卡其色皮椅非常別致,鋪上細膩柔軟的毛毛墊,清爽舒適亦不失質感,家里的老人非常喜歡坐在這里曬太陽,愜意十足。
沙發旁配置了一張金屬架小邊幾,放上梁太太喜歡的小插瓶,增添了幾分生活情調,黃銅網狀單人靠椅精美漂亮,提升了空間包圍感。
餐 廳
客餐廳相連通,保持了良好的家居互動性,梁先生一家最愛在周末的午后,三代同堂相聚在這里,吃喝玩樂,非常和諧美好。
餐廳區域比較寬敞,屋主選用了圓面六人座餐桌,寓意幸福美滿,背靠沙發處還配套了一個木質矮柜,可以進行補充收納,高度也剛剛好,方便孩子使用。
餐邊柜上擺放著屋主喜歡的藝術擺件,很有格調,端景墻的配設手法與客廳如出一轍,起到異面呼應的效果,感覺很不錯。
餐桌頂上配設了一個女主人喜愛的小白風葉吊扇,讓整個空間變得靈動起來,側墻處安裝了黑框玻璃門,將餐廳和廚房分隔開來,美觀又實用。
有時候梁先生與父親在客廳品茗下棋,小王子便喜歡在此擺弄一些自己感興趣的小物件,玩得不亦樂乎。
廚 房
廚房做成半開放式設計,內部定制了L型櫥柜和雙側平行吊柜,配合大大的窗戶,簡潔而明亮,墻面鋪滿白色面包磚,清爽潔凈,另一側擺放著冰箱和烤爐,組合成包圍感很強的U型空間,使用起來更方便。
Q:廚房做半開放的想法是怎么產生的?
A:原始的廚房僅留了一個小小的門洞,通透性不太好,我們喜歡一家人互動的感覺,于是在家裝時拆除了門洞周邊的隔墻,入口處整面做了黑款玻璃門進行隔斷,做飯時關閉,防止油煙外溢,不會干擾到其他功能區環境,平時便是敞開狀態,顯得寬敞明亮,非常不錯。
主 臥
主臥的格調清透自然,簡約舒適中透露出溫馨的氣質,淺灰色的墻面加上金色的吊燈,帶入一絲高級感,像女主人一般精致優雅。
床尾擺放著原木白系列的梳妝臺,質感輕盈,搭配絲絨化妝凳,多了幾分潮流氣息。
梳妝臺上擺放著屋主喜歡的藝術擺件,必要時把化妝品移開,便可作為小書桌使用。
靠窗角落處設計成休閑角,木質高腳邊柜復古典雅,搭配一把皮質單人椅,這是梁太太的“專屬領地”,閑暇時候,她喜歡蜷在這里看看窗外的風景,或者品讀一本傳記,非常愜意。
灰調的背景墻搭配木質的床體和床頭柜,經典耐看,床頭柜做了一半鏤空,方便取用物品。
臟粉色的床褥很舒服,這種水洗材質是梁太太最喜歡的,旁邊安裝了長虹玻璃推拉門,往里便是衣帽間,整體協調地搭配在一起,顯得高級大氣,又帶有些許神秘感。
Q:如何在主臥設計一個獨立衣帽間?
A:我們的主臥空間比較大,于是放棄傳統的衣柜布置,打造了衣帽間,容量更大更充足,分類收納各種衣物也很方便實用,選用長虹玻璃門做隔,高級又美觀,實力加分,棒棒的。
主 衛
主衛在三個衛生間中面積最小,但好在比較方正,絲毫沒有壓迫感,清淺的色調反而讓人感到恬淡整潔。
次 臥
次臥的格調相對精簡沉穩一些,同樣選用了清淺的色搭,營造出靜謐的休憩氛圍,很符合父母的居住需求。
木質的床體和床頭柜,質樸自然,加入綠植進行點綴,清新怡人,旁邊安置一把單人靠背椅,淺綠色的布藝座墊很舒適,老人喜歡坐在這里看看報紙,或者聽聽新聞,方便又實用。
次 衛
次衛給人成熟穩重的氣息,自由拼貼的六角地磚配上個性十足的放射線條,使空間又多了幾分現代摩登氣質,顯得大膽而時尚,墻面及其他布設皆是牛奶白色,平衡了空間質感。
女 孩 房
女孩房的面積不大,沒有炫麗的色彩,也沒有花哨的卡通形象,整體采用白+粉為主基調,配上簡單的家具和甜美的飾品,恰到好處地展現出孩子的童趣感,讓人感到溫馨舒服。
床尾安排成小公主的學習區,擺放一套書桌椅,方便日常學習使用,墻上做了簡單裝飾,小小的房間豐富而有趣。
白與粉拼接的窗簾,就像草莓牛奶冰淇淋,細膩柔和,連空氣也是甜滋滋的。能調節高度的書桌椅,貼合孩子的成長身高。
男 孩 房
Q:男孩房的飄窗很有特色,是怎么考慮的呢?
A:兒子生性活潑,各種飾品玩具非常多,飄窗特意做了鏤空底座,側面還做了儲物架,擴充了收納空間,保證居室的干凈整潔。旁邊還做了入墻式置物架,用來擺放一些零散的玩具。
靠墻擺放一張原木高低床,黑白配搭的床褥經典耐看,內墻做了倒三角貼片裝飾,顯得靈動自然,放上小王子喜歡的貓科動物擺件,多了些趣味性。
兒 童 衛 生 間
步入兒童衛生間,墻面和地板鋪滿不同色彩的六角磚,顯得非常“熱鬧”,獨特的風格,彰顯出活潑、溫暖的氛圍。
