- 詳細介紹
一場傾盆而下的暴雨,一聲震碎煩悶的驚雷,一陣穿林而過的清風,就是夏天最愜意的享受。
不知不覺中,夏日已深,@思寧在廚房中做著孩子喜歡的甜品糖水,丈夫幫忙擺放餐具,孩子坐在餐椅上滿眼期待,溫馨隨處可見。
沒錯,在這個季節,這就是大家都想要的生活!
@思寧家的房子是一套建筑面積80平米的小戶型,標準的兩室兩廳戶型。由于是套學區房,所以就算一家只有三口人,也要規劃出三個房間,以方便以后老人過來帶孩子時,有一個房間可以居住。
設計師采用北歐風格,通過不同空間的轉換改造,將兩房變三房,滿足三代同堂的居住需求。整個室內裝修采用的是簡約的設計手法,LDK開放式布局,讓空間在視覺上變得寬敞,行走動線也更加流暢;大面積的留白,搭配原木色,綠意幾縷,輕松營造溫潤悠然的家居環境,給屋主一個放松自己的小天地。
房屋信息:
面積:80㎡
戶型:三室兩廳一衛
風格:北歐
常住人口:3人
裝修成本:24萬
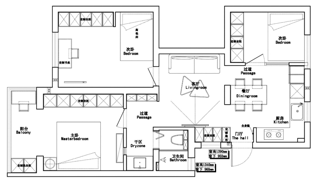
戶型圖
房屋是比較標準的戶型,但是對業主一家來說多少有些局促,尤其是在臥室方面,根本無法容納三代人同時居住。而且老房子的采光也不是很好,存在較多昏暗的死角,都需要進行改善。
改造亮點:
1、把原客餐廳位置挪至過道,改變區域功能,增加出一間臥室,兩房變三房;
2、廚房改成開放式設計,客餐廚一體化布局,拓寬視野,避免影響采光。
3、客廳變為臥室后,將原陽臺納入臥室,增加可利用面積。
4、不同區域打造定制收納柜,滿足儲物需求。
客廳
雖然整體面積比較小,但是合理的布局可以提高空間利用率。客餐廚一體化的設計,讓家居動線更加流暢利索,家人之間有更多的交流互動。中間承重墻巧妙地化為區域隔斷,絲毫不顯突兀。
玄關左側打造定制鞋柜,右側懸掛全身鏡,這樣的搭配讓門廳的功能更齊全。
由于層高受限,為了提升整體的寬敞度,客廳采用無主燈設計,加上極簡大白墻,沒有多余的裝飾,一眼望去更顯通透和亮堂。
客廳布置摒棄了傳統的大沙發和茶幾,而是選用兩張北歐復古單椅來替代,簡約大氣的造型和流暢的線條設計,流露出不凡的品質。
旁邊擺放網紅INS推車收納柜,實用性強,創意滿分。
餐廳
餐廳與客廳之間有一道墻體隔斷,區域劃分明確,兩邊門框打造成圓弧形狀,線條弧度中和了房子方正帶來的枯燥感,讓人眼前一亮。
餐廳舍去了多余的裝飾,長方形的餐桌尺寸大,但款式輕薄,一點兒都不笨重,再搭配上藤編餐椅,為空間帶來呼吸感,不顯擁堵。
一家人圍坐在桌子旁,一起享用美食,連空氣中都彌漫著幸福的味道。
上方是一盞燈光柔和的個性吊燈,簡單的搭配卻能輕松營造出溫馨的用餐氛圍。桌上綠植點綴不但能讓煩躁的心情得以平復,還能緩解悶熱,給家中帶來一絲清涼。
廚房
開放式廚房設計,減少了家中隔斷,原本昏暗的公區,也能擁有明亮的自然采光,更顯寬敞通透。
L型的櫥柜+墻體置物架,擁有強大的儲物功能,鍋碗瓢盆整齊歸置起來,讓廚房始終保持干凈整潔。
過道
為了不浪費過道空間,在這里打造置物架書柜,幾塊原木擱板就能擺滿琳瑯滿目的書籍。
下方懸空處擺放掃地機器人,沒有衛生死角,打掃方便,收納更人性化。
主臥
主臥是面積最大、光線最好的空間,設計師將陽臺包入了室內,讓每1㎡都得到了最大化的合理利用。
主臥的設計簡潔自然,不加修飾的大白墻搭配原木色家具,視覺上格外清新雅致。中間擺放雙人大床,素雅潔凈的床品,輕松營造出靜謐、舒適的睡眠環境。
雙人床左右兩側,是原木斗柜和極簡床頭柜,非對稱式設計,為素雅的睡眠空間增添了不少趣味性和活潑感。
設計亮點:
1、臥室陽臺擺放茶幾和藤椅,改造成小小休閑區,閑暇時坐在這里品一杯清茶,看一本好書,享受寧靜的愜意時光。
2、白色百葉窗有不錯的裝飾性,也能有效調節光線的明暗度,避免光線太刺眼或太暗。
3、陽臺邊墻嵌入式擺放洗衣機,烘洗一體,方便快捷。
次臥
父母房沒有擺放多余的家具,但恰到好處的家居配置簡潔而有格調,整體以明亮為主軸,用筒燈補足室內光感,減少主燈帶來的壓抑感和厚重感覺,讓父母能擁有更好的睡眠質量。
精致的藤編床頭柜大小恰到好處,“瘦身”百搭,能更好兼容小戶型臥室,臺燈、手機等日常小物,都可以隨手放置在這里。
兒童房
客廳臥室選擇原木地板通鋪,從視覺上連通了家里的每一個空間,也讓整個屋子充滿原木的質感,柚木地板柔和的色調,會讓人覺得更有家的溫度。
兒童房沿用了主體的溫暖舒適的色調,木制框架床選用了小屋造型,童趣滿滿。下方的兔子椅造型可愛,充滿童趣。
到頂的定制衣柜可滿足臥室的儲物需求,保持房間的寬敞明亮。
衛生間
洗手臺外置實現了徹底的干濕分離,衛生間里也不會再感到擁擠,還充分利用了家里角落的位置。
早上匆忙的時候,洗漱和上廁所的人不會互相沖突,節約了很多無效的等待時間。
整體采用白色瓷磚通鋪,簡潔清新。馬桶上方是定制的浴室柜,可以擺放各種洗浴用品。淋浴房利用浴簾隔斷,經濟實惠,節省空間。
