驚了,任性老婆在走廊裝了衣帽間!真的有那么香嗎?
來源:愛空間科技(北京)有限公司 日期:2022-11-23 16:39:16
- 詳細介紹
這是一個三口之家的靈動空間,整個戶型圍繞著怎么把每個角落靈活運用到極致而設計。業主喜歡溫馨舒適的現代風,要求將“簡約而不簡單”的理念融入設計之中。
設計師經過與業主多次溝通后,了解到業主比較偏向于暗調又帶有一點奢華的空間,于是將具有張力的單品家具和抽象的藝術結合,在“簡”中透出不凡的氣韻,利用灰色墻壁與暖調燈光營造高品質的溫馨空間,除此之外,三個臥室配置不同的硬軟裝,使整個家不但美,還很有個性~
房屋信息:
戶型:三室一廳
風格:現代簡約
面積:148㎡
裝修花費:15萬
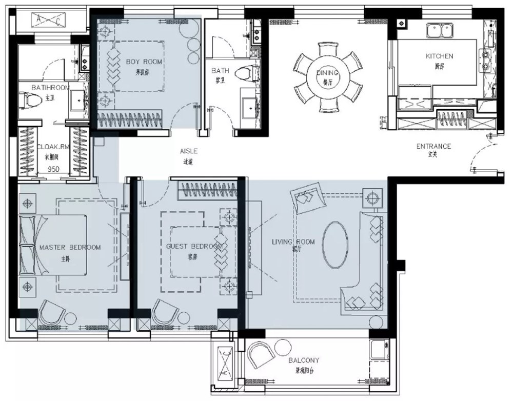
戶型圖
入戶即是長長的過道,屬于“一眼望穿”的戶型,設計師做了動靜分區,客餐廳盡可能保持寬敞通透,往內是三個相互獨立的臥室,主臥包入一部分過道空間設為衣帽間,并與主衛相連,形成南北聯通的“一字型”格局,空間利用率大大提高。與此同時,在設計過程中注重增加儲物空間,最大限度做到收納于無形。
玄關
入門區域沒有太多復雜的形狀,進門右側是一組實木玄關柜,收納美觀兩不誤。
與玄關相連的是一條長長的走廊,使用黑白灰來營造一種氣質時尚的氛圍。
一副現代藝術裝飾畫拉長了走廊的視覺空間,配上小天使的工藝品,靈動又可愛。
客廳
客廳采光非常好,大面積的落地窗,讓客廳有良好的通風條件和開闊的視野。
精致的燈具輕奢又飽含格調,米色沙發和圓凳,給人一種低調的高級感。
沙發背景墻灰色打底,以一副現代簡約立體抽象畫裝飾,樸素的弧線美感讓客廳顯得靈動精致。
電視背景墻以中花白瓷磚為底,經典的大理石紋,素美卻不單薄。下方配一個簡約的一字型原木電視柜,彰顯氣質的同時空間層次更加豐富了。
餐廳
餐廳頂部做了吊頂,嵌入燈帶,都是3000k的中性光,餐桌上方懸掛了一盞不規則幾何線形吊燈,也是用的中性光,不得不說,吊燈真是餐廳氛圍利器。
暖橙色與灰色的激烈對比,為空間增添一抹活力的色彩,視覺和居住體驗都上升到一個全新的層次,這便是現代風格設計的魅力所在。
廚房
廚房開間小,進深大。經典的黑色櫥柜和白色操作臺安靜穩重、精致、簡潔的設計,讓空間氣質不凡。
主臥
主臥延伸了整個空間的風格和色彩,床頭背景采用深灰色硬包,簡潔純粹,與整屋色調一致。棉麻的床上用品色彩淡雅,觸感柔和,給屋主帶來舒適的睡眠體驗。
衣帽間
過道盡頭隔出的衣帽間用暖色燈彌補光線不足,增添些許溫度感。
主衛
經過衣帽間便是主衛,原木的洗手柜與衣帽柜材質一致,簡單而精致。
男孩房
兒童房以多種亮色點綴,使得空間充滿活力。床和窗簾的南瓜色相互呼應,開啟有趣的對話,讓人更加靈活自由。
客房
客房配色明亮而柔和舒適,以寧靜為主題,意在給客人提供一個放松解壓的休息環境。
客衛
客衛用黑色、褐色、灰色營造出炫酷的空間氛圍,洗手盆和馬桶頂做成儲藏區,美觀與實用并存。
