我在客廳打造了完美的親子閱讀區
來源:愛空間科技(北京)有限公司 日期:2022-11-29 15:57:12
- 詳細介紹
「說在前面」
對于在成都打拼的人來說,擁有一個屬于自己的家,實屬幸福。Emily也是如此,懷著收房的喜悅,開始憧憬未來家的樣子。Emily夫婦都是文藝工作者,有一個2歲的寶寶,平時喜歡看書,考慮到裝修事關未來的生活和居住體驗,她一直有自己清晰的居住要求和設計理念,設計師在溝通之后,最終決定選用日式原木搭配現代簡約風格,弱化了客廳的原始功能,特意加入雙側到頂書架設計,打造成圖書角,網友直呼太愛了,一起來看看吧。
房屋信息:
面積:99㎡
戶型:三室兩廳一衛
常住人口:3口人,寶寶2歲
裝修成本:14萬
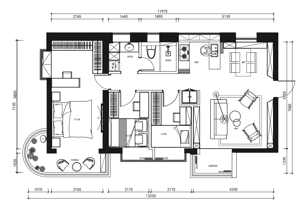
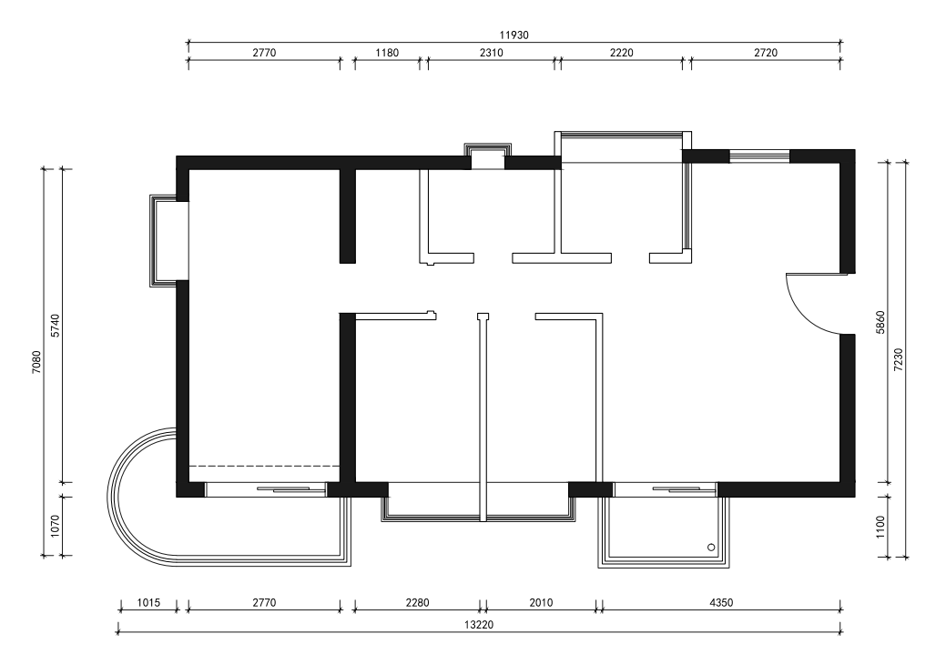
戶型圖:
原始戶型圖
以上原始戶型圖可以看出,廚房是封閉式的,由廚房到臥室的走廊很長,衛生間與主臥之間有一狹小區域,不好利用,這樣的戶型隔斷墻太多,導致空間有些混淆。
改造后布局圖
1、改造后衛生間將旁邊的狹小區域連通,作為洗手區使用,無形中增加了衛生間面積,
2、廚房的隔斷墻拆除后,設計成半開放式,讓客廳等活動區域更加開闊,
3、兩間小臥室門的位置做了輕微移動,整體更協調。
設計亮點:
1.以原木元素貫穿全局,整體呼應,打造了一個暖意十足的日式家居。
2.Emily不喜歡電視娛樂,反而有強烈的閱讀愛好,因此大膽將客廳與書房并用,濃濃的書香氣,洋溢在每個角落,凸顯主人的精神風貌。
3.開放式的廚房,讓家居格局更好,空間更開闊,更清透。
客 廳
客廳打破了常規的設計,沒有長沙發和中央茶幾,也沒有電視娛樂區,而是沿墻對應打造了兩個木質書架,豐富的藏書,就像圖書館一角,充斥著文化氣息,讓人內心感到充實,這里也是寶寶的娛樂小天地,玩耍、啟蒙學習,“每天都在與孩子一起成長,真的太幸福”,Emily開心地說。
原木架皮質座椅,與藤編圓墩形成質的碰撞,非常有感覺,偶爾以書會友,也不失為一種生活情趣。飄窗設計成休閑一角,完善了客廳功能。
座椅和小邊幾靈活輕便,可移動性強,閱讀之余,喝杯閑茶,修生養性,豈不美哉。
餐 廚 區
餐廚區與客廳沒有明顯劃分,動線不長,讓空間更開闊,做飯的時候孩子可以在客廳自由地探索玩樂,大人也方便照看,不失為一種健康的生活方式。
整體選用了原木色系,同時大膽加入了墨綠色修飾,溫馨有余,時尚有度。
餐廚區純白主色調削弱了空間飽和度,擴大了視覺感受,與客廳區分開來,同時輔以原木色的裝點,又相互呼應。
餐廳區域打造了L型邊柜,中部適當留空,用于擺放展示,小資情調剛剛好。
拆除原有墻體,半開放式廚房用墨綠色玻璃門框勾勒出輪廓,豐富了空間層次感,讓人眼前一亮。
一側與餐廳相連,讓空間更連貫協調,通透性更好。
另一側與走廊相通,冰箱做嵌入式設計,靈活利用了過道空間;
區域不大,卻巧妙利用櫥柜、吊柜、窗臺和島臺,將空間合理利用到極致,沒有絲毫零亂,設計手法相當高明。
廚房與餐廳之間設計了島臺,同步配設了水槽,日常傳遞、擺放餐飲什么的,別提多方便了。
島臺靠餐廳一側巧妙地設計了內嵌雙層簡易展架,擺放寶寶的畫冊讀物,高度適合,易于拿取。
餐桌上的鮮果,讓人垂涎欲滴,家的味道,幸福滿滿。
主 臥
主臥的設計相當簡約,將陽臺納入了室內,空間變大了,感覺更開闊,原木地板呼應整體風格。
棕色系的床上軟搭設計,更顯沉穩,條紋被褥讓空間靈動起來,整體搭配協調統一,床尾配設了壁掛電視機,滿足業主休閑娛樂的需求。
陽臺處配設了原木架皮質半躺椅,看看窗外的風景,品品百味的人生,給心靈一個舒適的港灣,在這里,只有最真實的自己。
原木床頭柜造型經典傳統,非常實用,擺放白瓷瓶插花,帶來一絲田園氣息,格調清新自然,惹人憐愛。
床的另一側配設了同樣的床頭柜,呈現出對稱的美感,一株綠植生機盎然,讓空間元素豐富起來,充滿活力。
小飄窗設計成休閑區,陽光透過紗簾,靜靜地流淌進來,這個時候,身心放松蜷坐在這里,一本讀物,一杯清茶,最適合不過。
衣柜靠窗位置,特意設計成開放式柜體,藤編盒子起到整理收納的作用,獨具特色。
次 臥
次臥沿飄窗設計了榻榻米,一致的高度讓床鋪空間得到了延伸,顯得寬敞。
床邊打造了開放式原木收納柜,擺放一些不常用書籍和物品。
兒 童 房
家里的寶寶還小,不能獨立分開睡,因此將兒童房暫時布設成游樂區,閑暇時候,陪著孩子玩樂探索,盡享幸福的親子時光。
衛 生 間
衛生間改動后,門外部分設計成洗手區,同時兼家政室使用,設置了收納壁柜,提高了空間利用率,純白的主色調,讓有限的空間毫不壓抑。
內部進行了干濕分離,黑白灰的經典搭配,時尚高級,洗漱臺外移的設計,讓區域功能劃分更明顯,空間也更寬敞。
最后的話
本案對原始戶型進行了調整后,布局變得協調流暢,最有特色,也是業主最滿意的地方,在于客廳與餐廚區的規劃,非常漂亮,尤其是圖書角的設計,讓整個家居書香四溢,凸顯著文化內涵,空間有限,意味無窮,簡直太棒了。
