宅家舒適宅,這套140㎡小三居改造后,刷爆朋友圈~
來源:愛空間科技(北京)有限公司 日期:2022-12-01 16:36:35
- 詳細介紹
今年很特殊,受疫情影響,在家呆的時間是參加工作以來最長久的一年。
和房子呆得越久,越是發現家居生活中存在很多問題,日子住得越長,感覺房子是越來越小了,壓抑與擁擠伴隨而來。
我不是一個愛囤積的人,但生活里怎么可能沒有家居用品。到最后才發現,簡約才是最理想生活狀態,而親切與舒適,正是一個家該有的模樣。
房屋信息:
面積:140㎡
風格:現代簡約
戶型:三室兩廳兩衛
裝修成本:18萬
老房翻新是個復雜的工程,我喜歡北歐與現代簡約的家居環境,經由朋友介紹,我找到了愛空間的設計師@張天霞,她很擅長這類型的家裝設計。溝通中,我們對于家居的簡約理念不謀而合,這讓我十分欣喜。
看了設計師為我的房子做的改造方案,一眼就愛上了,這就是我一直想要追尋的家呀。以純白為主,原木色為輔,呈現出生活中的暖意。不僅干凈清爽,而且極簡大方,最美好的生活氛圍興許就是這樣吧。
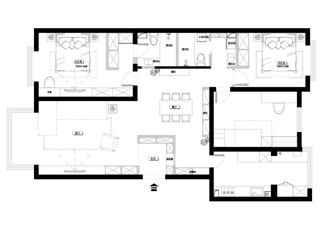
平面布置圖是引導后期裝修最重要的因素,一個房子住得是否舒適,要結合自身的生活習慣來決定。話不多講,先來看看設計師在平面布置上做了哪些規劃設計?
1、我家房子140平方(建筑面積)住著一家四口,戶型方正、南北通透。有孩子的家應該要有廣泛的活動空間,想在哪玩就在哪玩。所以室內空間都盡可能做大,減少累贅家具的擺設。
2、原戶型進門是沒有玄關區域的,設計師利用玄關柜打造出兼備實用性與高顏值的玄關轉角,讓家居的區域劃分更加明確。以柜體替代墻體,空間利用率大大增加。
3、采用大量的原木定制柜,增加房子的收納存儲空間,顯得房子更加寬敞明亮。
01
玄關
家就是情感的歸宿
推開門進入室內,立刻感受純白+原木色帶來的干凈,有種神奇的治愈效果。玄關鞋柜頂天立地,增加收納空間,外觀也十分簡約大氣。
中間鏤空窗的設計減少方正結構帶來的壓迫感,一進家門就倍感親切。
02
客廳
多元化
一家人的休閑、學習和娛樂
順著動線進入客廳,這里選擇了極簡舒適的懶人沙發,配著個性的原木茶幾,沒有多余的累贅家居,看起來是那么清新舒暢。在家呆得越久,發現客廳是最容易忽視的空間,一切的繁華絢麗都是虛無的,只有舒適自在才是真真切切的享受。
在電視背景墻上制作收納柜,放上書,客廳立即成為書房。還需要制作書房嗎?在客廳設置一排書架就能搞定。
陽臺與客廳之間的隔斷門拆除后,客廳空間更加寬敞明亮,可以在這里健身,可以與小孩一起玩游戲,陪伴成長,空間更加人性化。
03
餐廳
一家人的美好食光
生活越簡單,就越幸福。餐廳布置同樣極簡,質感十足的原木餐桌配著餐邊柜,溫馨實用。一瓶綠植成為空間里的點綴,注入清新之意,營造完美的就餐氛圍。
04
廚房
舌尖上的美食,誕生于心尖上的廚房
大落地窗陽臺,讓我對傳統廚房有了很大改觀。拆除中間隔斷墻,增加廚房空間,不再狹小擁擠,而是寬敞明亮,且干凈整潔的。
05
主臥
輕松舒適的主臥室
空間越簡單生活就越輕松,主臥室真的好簡單,平開門的臥室衣柜可以緩解臥室的收納壓力,顯得空間整潔寬敞。
原木護墻板配著素雅床品,干凈干練就是它最好的氣質。一張雙人床就是最好的休息區。
自然舒適的溫馨感,線條極致簡約,美不勝收。寬大的臥室窗戶,太陽正好灑進來,滿屋都是陽光的味道。
主臥帶衛生間已成一種時尚,滿足了屋主的隱私需求,也為了追求更好的生活質量,更避免了家人排隊上廁所的尷尬。
06
次臥
簡約大方的客房
父母偶爾過來小住,因此設計上是十分低調內斂的,沒有喧嘩的裝飾,一切都那么簡單大方。臥室窗戶帶來足夠的采光和通風,睡眠質量杠杠的。
素雅的床單搭配原木床頭板,極致的簡約是一種另類的獨特美感。
05
兒童房
童真/多功能
對于孩子來說,兒童房可以不大,但要滿足簡單的閱讀、娛樂、儲物需求,讓他們擁有屬于自己的小天地。設計師在小小的空間里,居然滿足了所有的需求,兒童房功能可謂滿分。
上下床是大多數家庭的選擇,尤其是兩個孩子的家庭,節省空間的同時,也增加了兒童房的樂趣,培養了兩個孩子之間更好的感情。
06
衛生間
干濕分離是關鍵
衛生間將洗漱區與淋浴區明確區分開來,雖然空間小,但是經過合理布局,還能將洗衣機和浴室柜完美融入進來。
干濕分離的設計可以讓衛生間保持干凈清爽,清潔打理更加方便。
結語
這套140平米的房子,整體以簡約自然的原木風格為主調,在現代舒適的空間里加入了大面積的木質柜體,呈現出一幅實用而又自然的空間氛圍,這樣的氛圍也正是年輕人所熱衷的舒適生活空間感。讓身為屋主的我感到十分滿意,忍不住分享給大家。
