9萬完美翻修奇葩老房,鄰居拿200平大別墅都不換!
來源:愛空間科技(北京)有限公司 日期:2022-12-02 16:44:41
- 詳細介紹
說在前面
自五年前父母換了大平層后,這套小房子便空置下來,原本打算賣掉的,但最終沒舍得,我的整個童年都是在這里度過,那些年雖然生活清苦,但一家人很幸福,它就像一個陪伴我們多年的老伙伴,早已有了無法割舍的感情。我和老公的婚房買在城西,去年工作變動,我和兒子隨老公到城中生活,父母便把這套63㎡的小兩居送給我們居住,這是以前父母單位上福利房,二十多年前的規劃,和現在的著實不一樣,恰好又在樓棟拐角處,不規則的戶型布局,裝修起來有些難度,經朋友介紹我們找到了愛空間的設計師,幫我們進行老房翻新,整體家裝圍繞簡約北歐風開展,效果非常棒,小戶型功能全,實用又溫馨,兒子說都不想換房子了,就想這么住下去,下面就一起來看看吧。
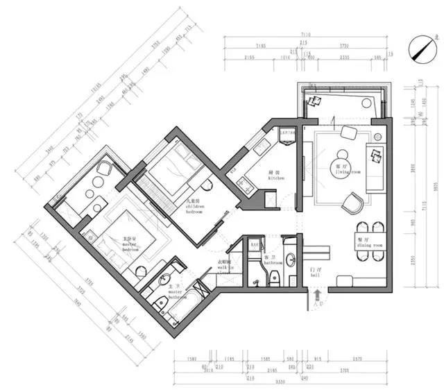
平面布局圖
房屋信息:
面積:63㎡
風格:北歐風
戶型:兩室兩廳兩衛
家庭成員:3人,兒子四歲半
裝修成本:9萬
玄 關
房子是小戶型,功能區沒有明顯的劃分,入戶直接就是客餐廳,這樣“赤裸”的布局,我和老公都不太接受,為了讓空間私密性更強,設計師在正對大門的位置配設了一個玄關柜,底部柜子+上部玻璃,隔而不斷,同時起到緩沖的作用。
客 廳
客廳以凈白和淡藍為主色調,初戀般的感覺,非常清新,搭配黃色布藝沙發,在沉靜的氛圍中裝扮出一個活潑跳躍的空間,非常和諧溫馨。
客廳區域不大,我們把陽臺打通納入設計,定制了原木榻榻米,鋪上軟墊打造成休閑區,側面及底部可以進行擺放收納,精美實用,空閑時坐在這里曬曬太陽、看看書,輕松愜意。沙發背景墻配掛了四幅簡潔的裝飾畫,豐富了空間元素,還有雙拼圓形小茶幾,質感輕盈,充滿活力。
客餐一體的設計,是格局所迫,也剛好是我們喜歡的,看起來更加通透,同時增強了區域互動性,整體鋪設了人字型木地板,靈動自然,客廳中央搭配黑白波紋地毯,很有立體感。
電視柜是我在網上購置的,沒想到性價比這么高,純白色很好看,吊空設計方便清理打掃,背景墻左上角配掛了一架創意時鐘,右上角安裝了一個壁掛空調,整體非常簡約大氣,又透露著淡淡的文藝氣息,空間雖小,功能齊全,便是小客廳最真實的寫照。
餐 廳
客廳的淡藍色背景墻延伸到餐廳區域,配掛一幅植物裝飾畫,清新自然,木質餐桌搭配黑白灰餐椅,頗有趣味,還有雙拼文藝吊燈,整個空間凸顯出素雅的格調。
側墻處打造了白色餐邊柜,底部留空,腰際處鏤空設計成原木擺臺,放上裝飾畫及小物件,簡潔優雅,又不單調,旁邊配設了一個金屬架藍色布藝換鞋凳,這是我最喜歡的一件小單品,很精致,也很實用。
廚 房
廚房位于轉角過渡區域,戶型并不方正,布置起來有一定難度,對于只有63㎡的小兩居來說,每一寸空間都是金貴的,幸好愛空間的設計師經驗豐富,解決不規則戶型有妙招,進入廚房的空檔位置剛好裝下一個收納柜,電飯煲、微波爐放在中間的兩個隔層上,實現空間的高效利用,同時保證了廚房的整潔美觀。
廚房內部沿墻打造了L型的白色櫥柜,以黑色手柄進行點綴,簡約時尚,柜體雖然不在一個層面上,但通過統一的色澤完美銜接,呈現出流暢的線條美感,很漂亮,空間不大,貴在清爽整潔。
主 臥
主臥以中性色調為主,灰色布藝軟床搭配米色床褥,四周大面積留白的墻面,看起來明朗開闊,床頭背景墻以兩幅壁畫進行裝飾,跳躍的色彩點亮了空間,整體布置簡單實用,營造出輕松舒適的休憩環境。
床頭左側配設了金屬架的梳妝臺,圓形鏡子上方安裝了一個小燈泡壁燈,典雅時尚。
陽臺以矮墻隔斷,臺面可以擺放小物件,也可用作吧臺,設計師把半開放式的陽臺裝成晾曬空間,側面打造了衣柜便于收納,空間利用率非常高。
主 衛
主衛大膽鋪設了回字黑白地磚,搭配白色大理石質感的墻磚,經典耐看,浴缸、馬桶、洗手盆,功能區獨立布置,又相互貫通,打造出一個舒適實用的享受空間。
灰藍色的洗手盆柜,收納能力很強,超實用,搭配大理石臺面及黑色五金件,素雅潔凈,上方配掛圓形美容鏡,彰顯出空間的現代時尚感。
浴缸的配設是我最驚喜的,原想著有個淋浴區就不錯了,浴缸純屬奢望,沒想到設計師看穿了我的心思,硬是給我擠出了一個泡澡空間,大愛~浴缸一側的墻面還裝了壁龕,方便實用,又不影響美觀。
兒 童 房
兒子說,他喜歡藍天白云,于是我們將兒童房布置成他想要的樣子,定制了藍色衣柜與床體,還一體化配設了書桌,凈白的軟搭和墻面,給人自由隨性的感覺,空間雖小,但功能齊全,完全能滿足兒子的生活需求。
床頭做了造型設計,背景墻以一幅卡通藝術畫進行裝飾,兩側對稱安裝了可愛的壁燈,配上精致的玩偶,仿佛置身童話故事,唯美浪漫。
活動區一側角落布置了一臺鋼琴,小小的空間顯得安靜而雅致,頗有格調。
次 衛
在次衛的布設上我也絲毫不馬虎,鋪設了防滑地磚,通過黃白灰三種色澤的相間排布,體現出很強的立體感,干濕分離自然也少不了,簡單以馬賽克+浴簾作為隔斷,節省空間的同時,使用起來也更靈活方便,大理石紋墻面和淺藍色洗浴柜,和主臥風格一致,兒子非常喜歡。
愛空間全國有1000多位設計師,會根據不同家庭對于收納的不同需求,1對1定制最適宜好用的居住方案,省錢又放心,快預約了解一下吧~
