不是吧!13w裝好一套95㎡的家,看完我跪下了
來源:北京居佳祥和裝飾工程有限公司 日期:2022-12-08 10:27:45
- 詳細介紹
今天想要分享一套北歐美宅~屋主說:
雖然自己對家居設計多多少少有些了解,但是為了確保房子裝修的高質量,還是選擇了將這件事交給專業的設計師來打造。
這套北歐風家居有著滿滿的高級感,是我想要的精致生活。全屋的原木家具定制,不僅耐用好看,且成本低。最重要的是可以自己選擇最環保的油漆,讓家人入住時更加安全放心。
#先睹為快
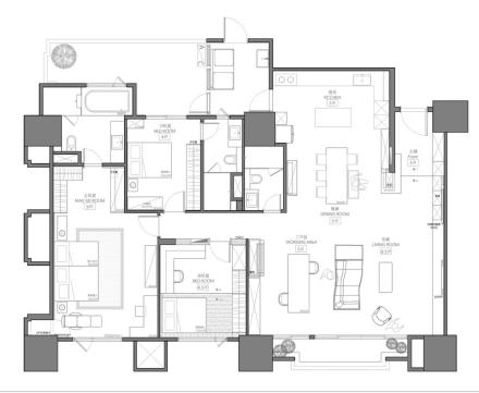
房屋信息:
面積:95㎡
戶型:三室兩廳一衛
裝修成本:13萬
家具選品的靈感借鑒了包豪斯設計風格,并融入斯堪迪納維亞地區的特色。
玄關
玄關處,幾何圖形的鏡子,簡約的掛鉤,回家時隨手將鑰匙掛起來,簡單方便,像我這樣的馬大哈,再也不用擔心找不到鑰匙了。
家里東西實在太多了,尤其是鞋子,所以必須增加玄關入口的存儲強度,定制玄關鞋柜,收納空間大,足以供日常使用。
最重要的,是自己喜歡的粉色。回到家看到粉嫩的大鞋柜,心情都格外舒暢了。
鞋柜上打造了一個巧妙的抽拉式收納架,平時推到鞋柜后面,隱藏起來,要找東西時再拉出來,創意十足。
據說玄關處是風水的進口處,在玄關擺放浴缸,會讓房主事業蒸蒸日上、財運連連,有著非常好的寓意。
在這里擺放浴缸,養一些好看的小魚兒,既裝飾了新房,也有著美好的寓意,何樂而不為呢?浴缸上面還有專門打造了一個收納柜設計,可以將一些魚飼料等小物品擺放在里面。
原木板凸出來,可以作為平時的換鞋凳使用,尤其是女生穿高跟鞋,有換鞋凳就可以舒舒服服地換鞋子了。
客廳
客餐廚一體化設計,客廳后還有一個開放式書房,點、線、面的視覺效果,捏塑出簡約平滑的線條,整體空間看起來更大。
寬大的落地窗,采光效果非常好,達到室內光線的明亮,凸顯室內寬敞,給人開闊之感。平時坐在客廳里,就能夠觀賞到外面的景觀。
坐感舒適的皮質沙發,精致個性的小茶幾,實木地板上鋪著素凈的地毯,每一處都體現著品質家居的格調。
電視背景墻沒有過多裝飾,壁掛式電視機搭配簡約的細長電視柜,將雜亂的電線都很好地隱藏起來,安全又整潔。
書房
書房與客廳相鄰,開放式的原木書柜擁有超大的收納空間,書籍、裝飾品整齊擺放、琳瑯滿目。
書柜下還有一架黑色經典的小鋼琴,培養孩子的音樂興趣。嵌入式的擺放可以節省很多空間。
書房的空間也比較寬松,可以供多人同時使用。方形書桌簡約大氣,自然美觀,以后在這里輔導孩子寫作業,最為合適了。
地板插座安全實用,將線隱藏在桌角內,給手機和電腦充電都很方便。
廚房+餐廳
一直主張開放式廚房,雖然廚房的空間不大,但是開放式格局會顯得更加通透明亮。
大櫥柜與實木擱板相結合,可以巧妙地利用角落空間。擱板主要擺放一些常用的碗碟,頓頓用,就沒有必要收進柜子里了。
原木餐桌是健康的時尚選擇,符合現代人崇尚大自然的心理需求。上方裝上兩盞小燈,晚上一家人圍坐著用餐時,更顯溫馨和諧。
臥室
臥室裝修低調寧靜,采用大面積的原木家具和溫潤原木地板,線條流暢,淡雅清爽。
素凈的床品和軟包床頭,柔和舒適,可以給家人提供良好的睡眠環境。
開放式衣柜可以增加收納的實用空間,上方擺放大件衣物,下面的小抽屜可以擺放各類小飾品和襪子、鞋帽等,分門別類歸置好,拿取也方便。
床尾打造粉紅色的斗柜,可緩解臥室的收納壓力。上方置物板也有效地利用了墻體空間。
臥室書桌是讓木工師傅現場制作的,擺放在這個窗邊角落,采光正好,也不會妨礙臥室的寬敞度。
大兒子的房間采用了地臺床設計,高度適中,節省空間,可以預留更多的空間打造臥室書桌,畢竟孩子學業重,在家經常要學習的,有獨立的空間,能更專心學習。
小兒子的房間相對簡單,墻邊是原木收納柜,可以收納衣物等,另一邊則是一個透明的玻璃展柜,上面擺放他心愛的手辦玩具。
衛生間
衛生間做了三分離設計,圓鏡和墻上的圓窗對應,非常有質感,干區半墻花磚可以裝飾,還可以有效清潔。
里面的浴室有一扇大面積飄窗,空氣流動快,干濕分離,非常安全。
經驗分享:
1、實木是家裝最好用的材質,環保安全,舒適耐用,小白業主們可以放心選用。
2、選擇好的木工師傅,對于裝修可以起到事半功倍的效果。
3、現場定制家具可以根據墻體結構調整,做到嚴密無縫隙,而很多人到家具市場購買家具,經常會出現尺寸誤差的問題。
