超大浴缸套間+休閑書房+獨立視聽室,人均80平的快樂!
來源:愛空間科技(北京)有限公司 日期:2022-10-25 16:55:41
- 詳細介紹
生活的旋律,來自廚房器具碰撞的優美聲響,來自家人之間不經意的關懷問候,源于家中各個角落徘徊跳躍,家的樣子,不盲從不跟風,適合即是最好。
本次案例的屋主是一對90后的新婚夫妻,兩人均在上海這座城市工作,女主@悠悠從事酒店行業,處女座,是一枚妥妥的細節控,對整潔干凈有著深深的執念,生活中喜歡烹飪、整理家務,回家之后主要的放松方式是看電影。男主人@軒軒從事IT行業,生活中喜歡玩VR游戲,回家后主要放松方式為泡浴,養一只萌寵也在計劃中。
兩人喜歡日式的清透優雅,卻不想將生活環境塑造的過于嚴肅刻板。所以,溫馨、舒適、簡約的生活環境是他們的主要訴求,因此,在簡雅的主題中去凸顯現代年輕人的生活方式是本次項目的設計重點,這里不多贅述了,后續為大家一一揭曉。
戶型:四室兩廳
風格:日式
常住人口:2人
面積:160㎡
裝修花費:28萬
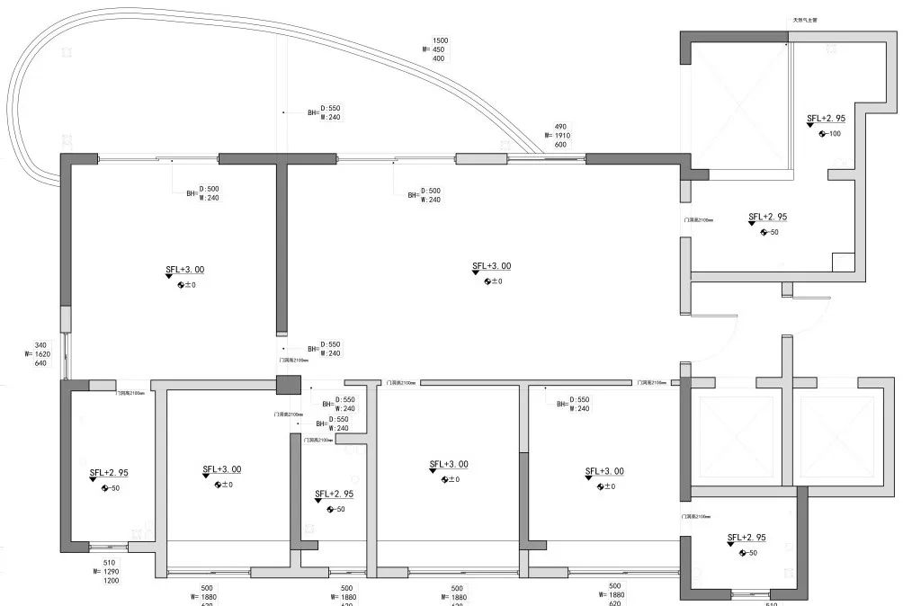
原始戶型圖
房屋是一套典型的四室兩廳的格局,面積足夠寬闊,但是兩人居住保留四個臥室有些浪費,針對屋主提到過的閱讀、影音和VR游戲等功能,我們進行了一些適當的調整。
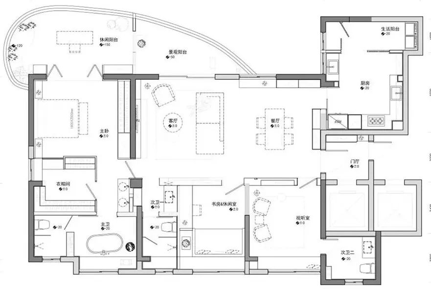
平面布置圖
調整策略如下:
①主臥與旁邊的小臥室打通使用,形成一個完善的大套房,擁有獨立的衣帽間和四分離衛生間。
②閑置的客房改成書房兼休閑室,滿足居家閱讀和休閑的需求。同時保留一定的居住功能。
③全屋設計了許多開架,提升整體收納的同時便于整理各類藏品和物件。
④將另一次臥改成視聽室,方便屋主倆人看電影玩游戲等娛樂需求。
客廳
客廳與餐廳之間是完全連通的形式,兩個區域皆以白色和灰色為主色調,搭配溫潤木色做裝扮,營造出自然純粹的居家環境。
得益于房屋原本的朝向和偏高的樓層,室內通透無比,白天采光充足,一整天下來不需要任何輔助光源,即便是陰天依然不會受到影響。
客廳定制內嵌墻體的壁柜,鏤空原木的板面顯露出濃郁的日式風情,隱藏式的移動門,輕輕推開便露出電視機,可以窩在沙發里看電影,關閉移門可展示柜內陳列的精美裝飾品,巧妙多姿。
窗簾采用百褶紗料,透光的同時保護了室內隱私,刺眼的光線因此而變得朦朦朧朧,極具文藝情懷。變幻的光線穿過夢幻簾,映射到墻面,家似乎有了生動的表情。
客廳一側的墻面是原木板飾面裝點的墻壁,下方的仿真壁爐,跳動的橘紅色火焰為室內帶來絲絲溫暖與安全感,充斥著熱情與煙火氣。
沙發的款式和房屋整體風格尤為契合,20公分的矮腳加原木底座,上面鋪了柔軟厚實的方塊坐墊,拆洗比較方便,高度契合人體工學。
餐廳
客廳沙發背后就是餐廳,細細觀賞,小空間大有看點,餐桌上方的純白球型吊燈、左側仿若展廳的開放式置物架......一個個物件共同促成了柔和溫煦的用餐情景。
餐椅略帶一些中古氣質,鏤空的靠背在炎炎夏日格外涼爽透氣,體感極為舒適。
除了作為用餐的場所,寬厚的餐桌還能夠作為臨時的辦公區和閱讀角來使用,兩人并排坐下不會擁擠。
廚房
原戶型設備間縮小面積,廚房的面積進行了擴大,便于將各類功能齊全配置在內,滿足女主人熱愛烹飪的小心愿。
廚房展示柜加裝了燈帶,日常取用物品具備較強的儀式性,旁邊做了鏤空的木格柵,是廚房和陽臺的隔斷,斑駁的日光為烹飪空間增添了一絲趣味。
主臥
原本的主臥不大,將旁邊的次臥打通,擴充后規劃成一個獨立套間,有休息間、衣帽間、衛生間、休閑陽臺,居家都能體驗五星級酒店套房的舒適。
床頭用微水泥墻漆渲染出一派清雅寧靜的氣氛,床體取消靠背,直接放張床墊,稍顯暗調環境利于更好地入眠。
臥室和陽臺之間采用折疊門進行隔斷,清晨推開移門,第一縷陽光照射到床邊,一種踏實的效果從外界直抵內心,安心又滿足。
床尾布置了通頂壁柜,被褥等各類大物件收納其中,只需偶爾整理一次就能保持整潔,壁柜底部特意留出了一小塊區域,放置包包和常用物品。
休閑陽臺
從臥室走兩三步就可以親近自然,擁抱陽光,此處作為多功能區域又可以做女主人的茶室和書房,閑時可以插花、品茗、閱讀。
半弧度的落地窗安裝半透白紗,在微風中搖曳著身姿,一書一茶一坐就是一下午,身心會得到洗滌和凈化。
衣帽間
主臥自帶的衣帽間內部以開架為主,方便掛衣服、放包,梳妝臺與臥室之間采用玻璃窗相隔,互動性更強。
主衛
主衛進行了干濕分離,各個功能互不打擾,方便日常使用,雙臺盆的洗手柜,兩人同時使用很方便。
泡澡區以巖板鋪貼墻面,穿插原木材質的架子與百葉窗,品質與品味有了雙重的保障,飄窗臺上的木質燈具為衛浴環境增添了一絲活力。
書房/休閑室
這是閑置的客房改成的多功能房,適合在此冥想、待客或者辦公,簡單到僅有榻榻米、書桌、座椅,局部點綴迷你雪松盆景,極具文雅之風。
辦公桌連接榻榻米,懸空造型不留死角,便于清潔灰塵,久坐辦公雙腳可以自由活動,絲毫不會疲勞。
木色百葉窗掌控著室內的明暗,散發著風雅的書卷之氣,與總體的氣氛配合得天衣無縫。
視聽室
她愛看電影,他喜歡打游戲,這間視聽室就是裝下了兩人小愛好的世界,一人坐一個沙發,還可以把腳搭在軟墊上,這樣的安逸小日子誰不羨慕。
沙發中間放個茶幾,觀影娛樂配上香薰、小零食還有美酒,二人世界樂趣無窮。
