90后的家:原木元素+綠植點綴,輕松get不一樣的ins北歐風!
來源:北京居佳祥和裝飾工程有限公司 日期:2022-12-09 16:25:51
- 詳細介紹
本案例業主是一對剛結婚的小夫妻,他們倆都是從事于互聯網行業,對時尚和潮流的高敏銳度讓他們對于自己的家也不甘平凡,而是希望整體風格獨特、具有年輕活潑氣息,最好是帶有一點ins網紅風,此外,居住起來要便利、溫馨、舒服。
經過對他們審美品位的了解后,最終將房屋風格定為北歐風,符合目前潮流趨勢,同時在細節處和軟裝上用獨特的元素進行點綴,最終呈現出了這樣一套生機勃勃而又別具一格的大氣美宅。如果你也喜歡與眾不同的家,就繼續看下去吧!
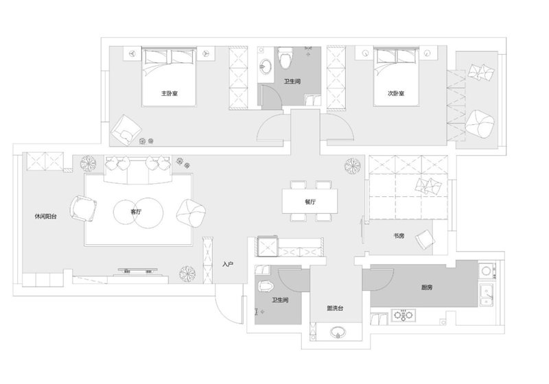
房屋平面圖
房屋信息:
面積:108㎡
戶型:兩室兩廳兩衛
常住人口:兩口人
裝修費用:10萬
客廳
進門玄關左手邊是鞋柜,上面可以擺放裝飾品。客廳以白色為主色調,灰色為點綴,可以看到有一扇大面積透明窗的存在,讓整個空間采光非常充足。
整個客廳有多處綠色點綴,并輔以大量原木元素,為整個清冷北歐風增添了溫暖和活力氣息,整個空間橫貫南北,非常寬闊通透。
沙發的角落擺放了精心修剪的高大盆栽,細條狀葉子給整個空間增加了一絲雜亂的酷感。茶幾同樣也是木質花紋設計,和盆栽的樹干相輔相成,互為映襯。
棕灰色沙發和組合茶幾色調和諧,墻上畫作具有濃濃后現代主義色彩,非常前衛。
窗邊是一個陳列柜,下方可以做收納柜使用,上方可以擺放盆栽、蠟燭和工藝品,往往這種小飾物能夠給整體風格描邊。單人沙發為原木設計,溫暖質樸。
過道空間連接客廳與餐廳,同時還是玄關正對之處,所以對過道的裝飾也沒有放松,選擇用簡簡單單的金屬植物架、畫框、壁燈來進行裝飾,簡約但很有格調。
餐廳
餐廳仍然使用白色作為主色調,輔以木色和綠植作為點綴,非常有ins風的味道。
餐桌和餐椅均為簡單原木設計,可容納多個人同時進餐,沒有繁復多余的裝點,木質手工打造,簡約大氣又恰到好處。上方的金屬吊燈增加了用餐空間的氛圍感。
餐桌背后是櫥柜,同時可以當作收納柜使用,平時在上面擺放小盆綠植,簡約精巧,兼具實用性和美觀。
在原木餐桌上鋪上桌布,再擺上應季的新鮮水果和牛皮紙包裹的干花,富有小資情調,健康生活就從每一天的就餐開始。
餐廳一角擺放高大的綠植,一抹翠色為餐廳增添不少清新感,讓人眼前一亮。掛鐘和畫框擺臺,富有生活氣息,讓角落有一種優雅的精致感。
廚房
整個廚房的背景和墻面全部使用原木地板鋪就而成,仿佛置身北歐的森林小屋,非常有格調,而櫥柜全被漆成淡藍色,整體色調非常柔美和諧,在這樣的廚房里烹飪可以說是一種幸福。
主臥
整個臥室搭配,和整體的風格適配。墻上掛的畫是植物剪影,非常有藝術感,也和房屋整體綠植主題很搭。
主衛
主衛的淋浴間由黑色墻磚組成,個性十足。地面做了防滑處理,非常安全。
衛生間空間小如何做干濕分離?一個簡單實用的浴簾將是你的最佳選擇哦。
陽臺
這是次臥的陽臺,是一個獨立明亮的小空間。背后的墻面采用原始的白磚設計,非常復古,墻上也有設置擺臺,用來擺放小工藝品和盆栽。下面座椅上也有設計抱枕和毛毯,讓主人閑暇時間可以來這里,享用一杯咖啡,讀一本書。
客衛
客衛位于玄關進門的右手邊,平時主要用來給客人使用。大盥洗臺干凈、清爽,黑色瓷磚與白色墻面的拼接簡約大氣,鏡面金屬邊框增加了幾分貴氣奢華,地面上五邊形瓷磚的顏色和諧,非常獨特。
最后的話
整個空間寬敞、明亮、優雅、不俗,很有ins網紅美宅的風情。
綠植和原木元素的加入,讓這套北歐風房屋瞬間變得不同了起來,增添了不少活力和溫馨,這才是屬于90年輕人的個性之選。
